Rental property Amsterdam

Sijpestein 128, Amsterdam

Quick summary

Location
Amsterdam
Rental price
€487.20
Property type
Benedenwoning
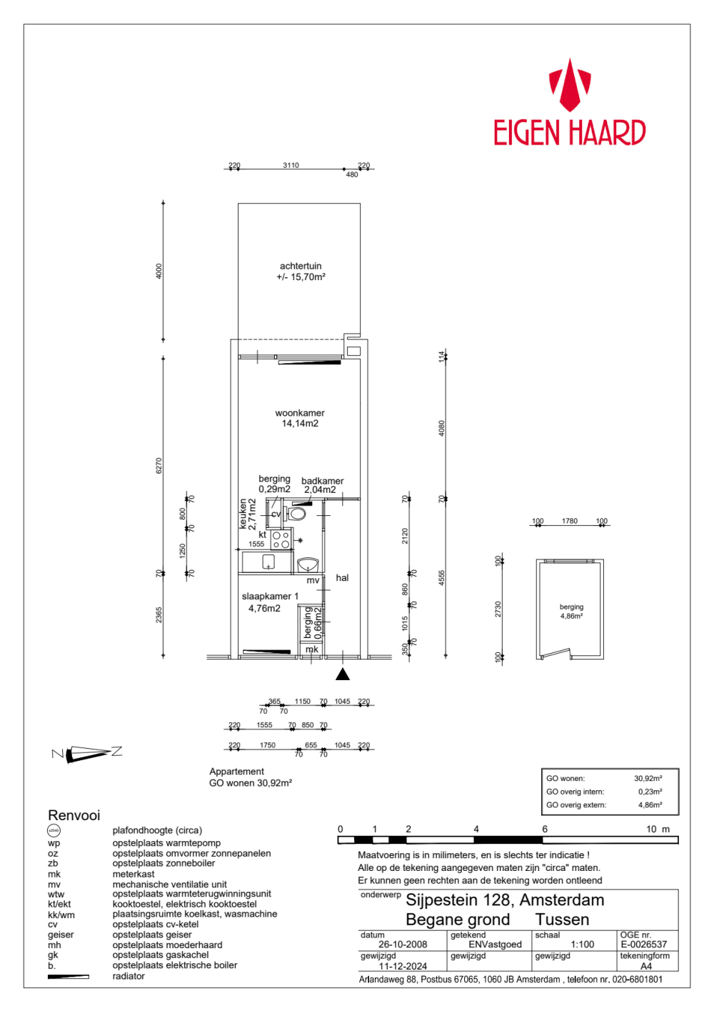
Area:
24 m2
Rooms:
2
Beds:
1
Waiting time:
(not set)
Date available:
Feb 10, 2025
Maximum income:
€39.055.00
Status:
Expired

Property description

JongerenwoningenVoor deze woning wordt een tijdelijk contract afgesloten, met een looptijd van maximaal 5 jaar.Bij deze jongerenwoning geldt dat er minimaal 1 en maximaal 2 personen mogen wonen. Huishoudens van 3 of meer personen kunnen hierdoor niet worden toegewezen. Daarnaast zijn huishoudens met kinderen in deze woning niet toegestaan.Een jongerencontract wordt slechts afgesloten tót de leeftijd van 28 jaar. Als men 28 wordt ná het reageren op de woning maar vóór het tekenen van de huurovereenkomst komt men niet in aanmerking.Let op:studenten die een voltijdse dagopleiding volgen en/of staan ingeschreven bij Studentenwoningweb komen niet in aanmerking voor een jongerenwoning met een vijfjarencontract, tenzij er in de gemeente geen studentenwoningen zijn. Studenten die een deeltijdopleiding volgen mogen wel reageren op jongerenwoningen met een vijfjarencontract.Let op: *inwonende kinderen niet geschikt voor deze woningBijzonderhedenGehorige woningBetaald parkeren voor de deur. Voor meer informatie hierover klikt uhier.Deze woning ligt in een gebied nabij Schiphol. Hierdoor kunt u (mogelijke) geluids- en milieuoverlast ervaren.De woningWoning op de begane grondKleine open keukenIn de keuken past geen fornuis enkel kooktoestel op het aanrechtKleine slaapkamer, past geen 2-persoonsbedWasmacheaansluiting in de keukenBadkamer met toiletKoken is op gasCentrale verwarmingDe woningkenmerken, plattegrond en huurprijs kunnen nog wijzigen. Klikhiervoor meer informatie.De buurtIn de wijk BuitenveldertOp loopafstand het winkelcentrum Groot Gelderlandplein. Dit winkelcentrum heeft een divers aanbod van speciaalzaken, modezaken, horeca en supermarkten.Dit appartement gelegen nabij de Vrije Universiteit, Het Amsterdamse Bos, Amstelpark en de Zuid-As met station Zuid. Tevens zijn er diverse sportgelegenheden in de buurt.Trein en metro station Amsterdam Zuid en Amsterdam RAI liggen op fietsafstand.Bus- en tramhalte A.J. Ernststraat op loopafstand. Daarnaast bent u met de auto binnen een paar minuten op de ringweg A-10 en de A-2 en A-4.Technische staatWe leveren de woning volgens de Eigen Haard standaard op. Voor meer informatie kijkt uhier. Houd er rekening mee dat u zelf ook nog het een en ander moet doen om de woning naar uw smaak te maken. Denk aan schilderen van de muren en plafonds, afstomen van behang en/ of het leggen van een vloer.Wilt u de woning huren?Voor meer informatie over welke documenten u nog meer moet inleveren op het moment dat u eerste kandidaat wordt voor de woning, kijkt uhierop onze website.

Map