Rental property Amsterdam

Spadinalaan 592, Amsterdam

Quick summary

Location
Amsterdam
Rental price
€890.90
Property type
Benedenwoning
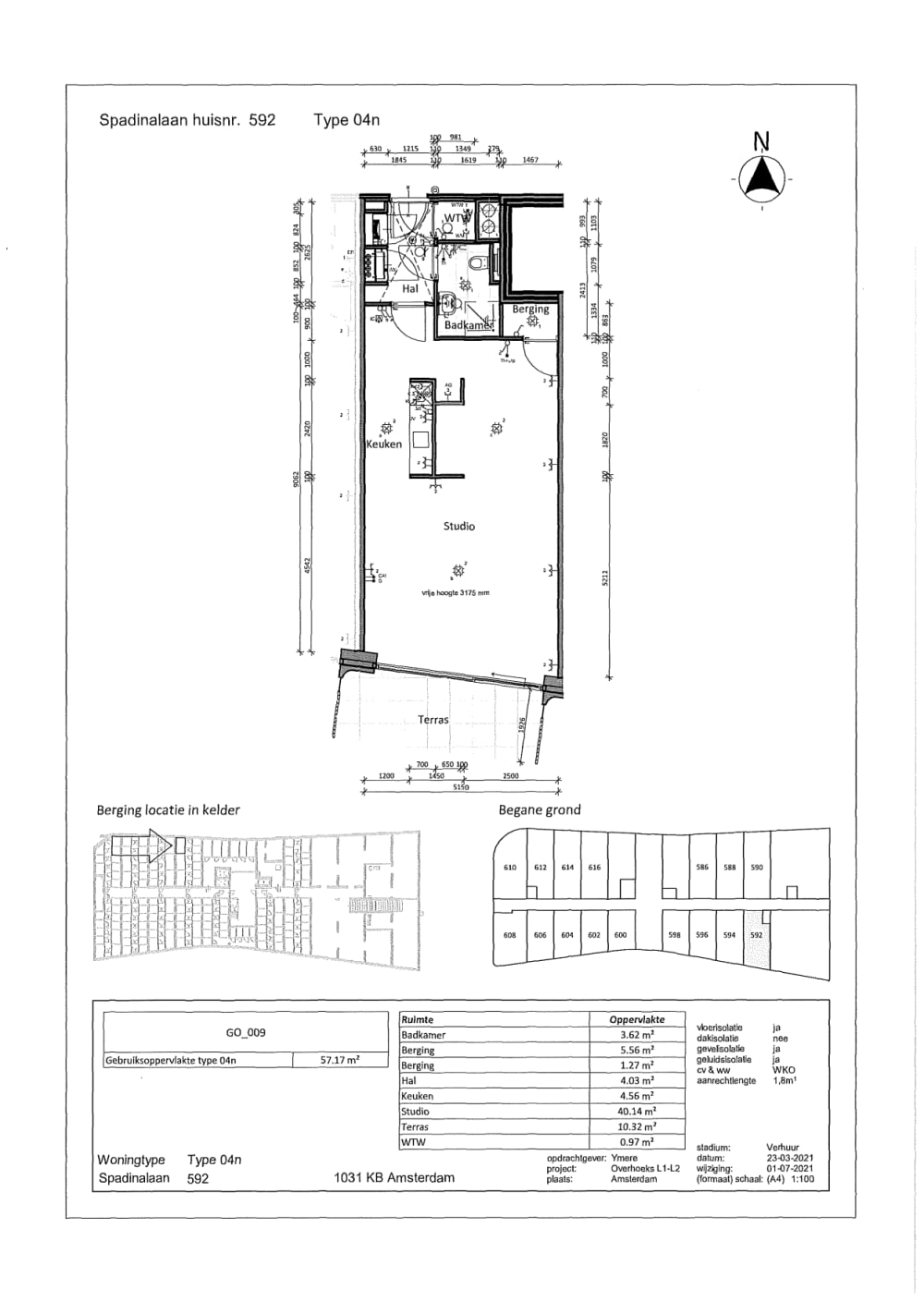
Area:
47 m2
Rooms:
1
Beds:
0
Waiting time:
(not set)
Date available:
May 16, 2025
Maximum income:
(not set)
Status:
Expired

Property description

Eenkamer woning op de begane grond in de buurt van IJ-oeversWoningBenedenwoningOpen keukenBadkamer en toilet samenWasmachine aansluiting in de bergingDe woning heeft leef en contact geluidenBovenburen aanwezigGeen buitenruimteBerging aanwezigLiftBijzonderhedenWij bieden een knusse studio appartement aan op de begane grond zonder parkeerplek in nieuwbouwcomplex de Jakoba.Vloerverwarming en warme watervoorziening wordt geleverd door Warm aan het IJ. Hiervoor dient u een leveringsovereenkomst bij Warm aan het IJ af te sluiten.Woonomgeving De Jakoba ligt in een autoluw gebied in Amsterdam Noord Overhoeks. Een parkeervergunning wordt door de Gemeente Amsterdam niet verstrekt.Uitzicht op gemeenschappelijke tuin en richting het westen ( het IJ ).De binnenstad van Amsterdam is op een steenworp afstand te bereiken via de pont naar CS. Nabij groenvoorziening, wandelpromenade aan het IJ. Zo ook eet-en uitgaansgelegenheden en winkelcentrum Mosveld.Staat van de woningYmere levert iedere woning op met basiskwaliteit: schoon, heel en veilig.Wat moet u aan de woning doen?Houdt er rekening mee dat u zelf nog het een en ander moet doen om de woning naar uw smaak te maken. Denk hierbij aan het leggen van ondervloeren en vloeren (minimaal 10cha decibel reducerend), schilderen en behangen van de wanden en plafondsOvernameDe vertrekkende bewoner biedt ter overname aan:Laminaat vloer + gordijnen, prijs in overleg met oud huurder.Op de overnames kunnen geen rechten worden ontleend. Bij defect worden ze voor de oplevering door Ymere verwijdert. Bij eventuele toekomstige gebreken zijn de kosten voor de huurder zelf. Bij ondertekening van de huurovereenkomst bent u automatisch eigenaar. Ymere voert hier geen werkzaamheden aan uit.In de buurtOpenbaar vervoerScholenWinkelsSupermarktHorecaParkenUitvalswegenBetaald parkerenVerzamel alvast uw gegevensKrijgt u een uitnodiging om deze woning te bekijken en wilt u komen kijken? Verzamel dan alvast uw gegevens voor Ymere.  Want als u de woning komt bekijken en daarna laat weten dat u deze wilt huren, moet u uw gegevens de volgende werkdag voor 12.00 uur aanleveren. Ook als u niet kandidaat nummer 1 bent levert u de gevraagde documenten in!  Kijk op onzewebsiteof in dezefolderwat u moet aanleveren. Levert u uw gegevens niet op tijd aan? Dan krijgt u geen aanbod. U kunt de woning dan niet meer huren.De oplevering van de woning kan afwijken van de advertentietekst, de plattegrond, de foto’s en de bezichtiging in verband met eventuele werkzaamheden.Aan deze advertentie kunt u geen rechten ontlenen.

Map