Rental property Amsterdam

Sperwerlaan 16, Amsterdam

Quick summary

Location
Amsterdam
Rental price
€942.36
Property type
Maisonnette
Area:
61 m2
Rooms:
3
Beds:
2
Waiting time:
(not set)
Date available:
Jan 20, 2026
Maximum income:
(not set)
Status:
Published
Respond

Property description

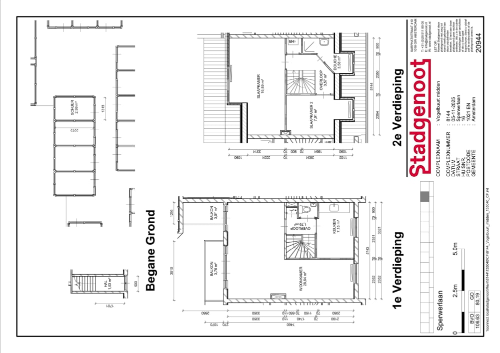
Maisonnette met 3 kamers op de 1e verdieping in de vogelenbuurt, voorrang voor kleine gezinnen (2 verdiepingen, 3 kamers, vogelenbuurt)De woning:Woning is volledig gerenoveerd (inclusief nieuwe keuken, toiletruimte en badkamer)3 kamerwoningBereikbaar met trap (2 verdiepingen, 15+ traptreden)Woonkamer op de 1e verdiepingSlaapkamers op de 2e verdiepingApart toiletDichte keuken, elektrisch kokenBerging (schuur op de begane grond)Wasmachine aansluiting in de badkamerBalkon (toegang via woonkamer)Houten kozijnen en ondervloerBuurtSupermarkt, winkels en horeca op loopafstand (IJplein)Noorderpark en vliegenbos op fietsafstandBushalte op loopafstand (havikslaan)Metrohalte op fietsafstand (centraal station inclusief pont en Noorderpark)Treinstation op fietsafstand (centraal station inclusief pont)Centrum op fietsafstand (inclusief pont)Zie ook tabblad LocatieParkerenLet op: bij sommige woningen wordt vanuit de gemeente geen parkeervergunning afgegeven. - Bent u benieuwd of het bij deze woning mogelijk is om een parkeervergunning te verkrijgen?Kijk op:www.amsterdam.nl/parkeren-verkeer/parkeervergunning/parkeervergunning-bewoners/of neem contact op met de gemeente voor meer informatie.Soms is het mogelijk om in de omgeving via Stadgenoot een eigen parkeerplaats te huren. Bekijk ons aanbod op:https://aanbod.stadgenoot.nl/parkeerplaatsen/huuraanbodVoorrangKleine gezinnen kunnen voorrang krijgen op deze woning. Dit zijn huishoudens met één of twee kinderen. Minimaal één van de kinderen moet jonger dan 18 jaar zijn. De voorrang voor kleine gezinnen controleren we nadat u op de nummer 1 positie bent gekomen en de woning aangeboden heeft gekregen.Let op! Heeft u gedeelde zorg over uw kinderen? Om deze woning te kunnen huren moet in het ouderschapsplan afgesproken zijn dat uw kinderen minimaal 50% van de tijd bij u verblijven. Het ouderschapsplan is een officieel document, dat aan de volgende eisen moet voldoen;De handtekeningen op het ouderschapsplan moeten gelegaliseerd zijn bij een notaris, ofDe handtekeningen op het ouderschapsplan moeten gelegaliseerd zijn bij de gemeente, ofHet ouderschapsplan moet onderdeel zijn van een echtscheidingsconvenant /-vonnis.Als u geen ouderschapsplan heeft dat voldoet aan de eisen, kunnen wij deze woning niet aan u verhuren.WaarborgsomVoor Sociale Huur betaalt u een waarborgsom ter hoogte van een maand huur. De waarborgsom betaalt u samen met de eerste huur.Aan te leveren documentenVerzamel uw documenten op tijdWordt  u na de selectiedatum uitgenodigd voor de bezichtiging? Verzamel dan alvast uw documenten. Wij vragen u uw documenten binnen 2 dagen aan te leveren als u 1e kandidaat bent voor de woning. Lees hier welke documenten u moet aanleveren:Aan te leveren documenten.DuurzaamElektrisch koken: Er is geen gas meer in huis. U kookt dus elektrisch. In de keuken zit een Perilex-aansluiting voor een elektrisch kooktoestel. Dit is een aparte (2-fase) aansluiting. Let op! Het elektrisch vermogen van uw kooktoestel mag niet groter zijn dan 7,4 KW.Technische staatStadgenoot levert de woning schoon, heel en veilig aan u op. Houd er rekening mee dat u zelf nog wat aan de woning moet doen. Denk aan schilderen van de muren en plafonds, afstomen van behang en/of het leggen van een vloer.Let op:Woningkenmerken en plattegrond kunnen mogelijk iets afwijken van de werkelijkheid. Bijvoorbeeld omdat wij nog werkzaamheden moeten uitvoeren na de bezichtiging. De basis zoals het aantal kamers en het type woning staan vast.

Map