Rental property Amsterdam

Van Mourik Broekmanstraat 45, Amsterdam

Quick summary

Location
Amsterdam
Rental price
€945.00
Property type
Portiekwoning
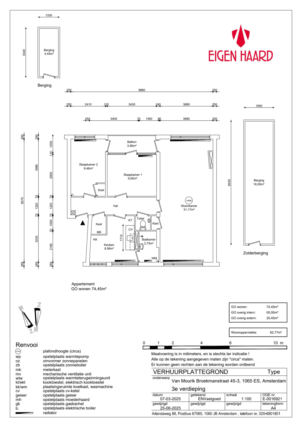
Area:
74 m2
Rooms:
3
Beds:
2
Waiting time:
(not set)
Date available:
Jul 8, 2025
Maximum income:
(not set)
Status:
Expired

Property description

Tip!Verzamelde benodigde documentenalvast. Je hebt zemeteenna de bezichtiging nodig.Over de buurtGelegen in een rustig gedeelte van Amsterdam Slotervaart. Nabij winkels, scholen en het Sloterpark. Voldoende openbaar vervoermogelijkheden zijn in de buurt te vinden, o.a. de trein en de metro op Station Lelylaan. Uitvalswegen zijn snel te bereiken vanaf hier, met de auto ben je binnen enkele minuten op de Ring A10.Indeling van de woningDerde verdieping entree naar woningRuime woonkamerGesloten keukenTwee slaapkamersEen slaapkamer met toegang balkonNette badkamer met doucheApart toiletIngebouwde kasten aanwezigExterne zolderbergingParkerenRondom de woning geldt betaald parkeren. Wij verwijzen je naar degemeentevoor informatie hierover. Optioneel is het mogelijk om in de omgeving een parkeerplaats te huren. Er kunnen wachtlijsten zijn. Bekijk onsparkeeraanbod.ToewijzingEigen Haard verhuurt huurwoningen in het middensegment op basis van het actuele inkomen (inkomen op dit moment). Zorg er daarom voor dat je actuele inkomen staat ingevuld in je profiel vóórdat je reageert op de woning. Laat dit bedrag vervolgens in je profiel staan totdat de selectie van de woning is geweest. Doe je dit niet? Dan kan het zijn dat wij je bij de gegevenscontrole moeten afwijzen voor de woning. Bekijk hier hoe je het actuelegezamenlijk jaarinkomenbepaald.Het actuele inkomen van jou en je eventuele medeaanvrager tellen beide voor 100% mee.Als je zelfstandig ondernemer (zzp'er) bent, dan moet je minimaal 2 jaar werkzaam zijn als zelfstandig ondernemer voor de huidige onderneming. Ben je niet minimaal 2 jaar werkzaam als zelfstandig ondernemer, dan kom je niet in aanmerking voor de woning.Eigen Haard wil graag passend verhuren,kijkwat dat voor jou betekent.Doorstromers krijgen voorrang bij Eigen Haard. Bij Eigen Haard is een doorstromer iemand die een zelfstandige sociale huurwoning van een corporatie leeg achterlaat binnen stadsregio Amsterdam.Hierleggen we je uit wat het verschil is tussen een doorstromer en een instromer.Huur je van Eigen Haard een sociale huurwoning en laat je die leeg achter? Je krijgt dan voorrang op andere doorstromers en er geldt voor jou geen maximale inkomenseis, wel de minimale inkomenseis._________________________________________________________________________________(Voorwaarden)De woning is per direct beschikbaar;De geliberaliseerde huurovereenkomst geldt voor onbepaalde tijd, maar minimaal voor één jaar.Bij het ondertekenen van het huurcontract betaal jeHuur (afhankelijk van de ingangsdatum van het huurcontract);Een waarborgsom  (1 maand huur);Administratiekosten (€ 16,50).DisclaimerDe getoonde informatie is door ons met zorg samengesteld op basis van beschikbare gegevens, maar kan afwijken van de werkelijke situatie. Hier kunnen geen rechten aan worden ontleend.

Map