Rental property Amsterdam

Vechtstraat 71, Amsterdam

Quick summary

Location
Amsterdam
Rental price
€911.29
Property type
Portiekwoning
Area:
50 m2
Rooms:
3
Beds:
2
Waiting time:
(not set)
Date available:
Mar 16, 2026
Maximum income:
(not set)
Status:
Published
Respond

Property description

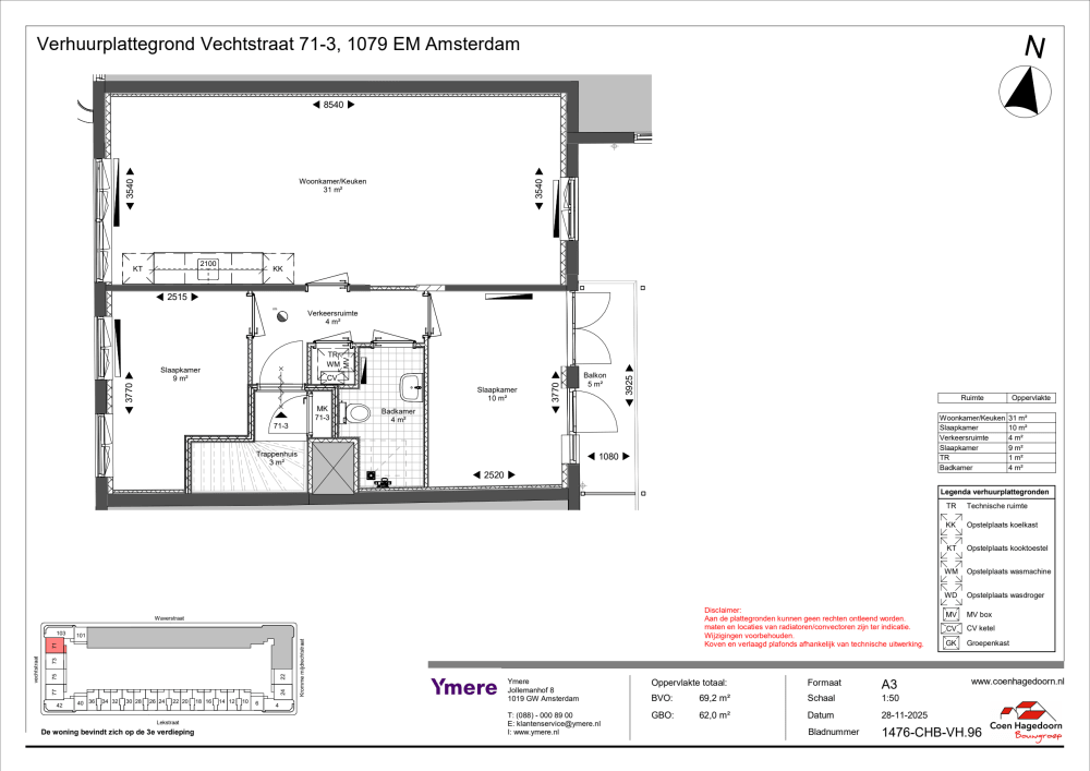
Project LekstraatWonen in een volledig gerenoveerd appartement in de Rivierenbuurt? Dit is je kans!Ymere verhuurt binnenkort gerenoveerde middenhuur appartementen in de Rivierenbuurt. De woningen zijn gelegen aan de Lekstraat, Kromme-Mijdrechtstraat, Vechtstraat en de Waverstraat Amsterdam-Zuid ( Rivierenbuurt).  Let op!! De woning is in de week van 23 maart 2026 gereed.Gerenoveerde appartementenNa de renovatie zijn de woningen van binnen modern en voorbereid op de toekomst. Van buiten blijven de woningen zoveel mogelijk hetzelfde. Om dit te bereiken heeft Ymere de volgende werkzaamheden uitgevoerd:Het opknappen van het trappenhuisVervangen van woningtoegangsdeurenVerbeteren van de isolerende, geluidwerende en brandwerende eigenschappen van alle vloeren, gevels, daken en bouwmurenAanbrengen van nieuwe plafondsHerinrichting van de appartement indelingPlaatsen van nieuwe installaties zoals de mechanische ventilatie, cv-ketel en radiatoren, meterkast en intercom.Het plaatsen van nieuwe kozijnen met HR++ dubbelglas ramenHet plaatsen van een nieuwe keuken, badkamer en toilet.In de woningen voorzien van mogelijkheid om elektrisch te kunnen kokenEnergielabel AWoning2 slaapkamersBadkamer met douche, toilet, wastafel, spiegel en handdoekradiatorBalkonKoken gaat op elektra. Er is wel gas aanwezig voor het verwarmen van de woning.Energielabel AGeen lift aanwezigGeen externe berging aanwezigHet gebouw heeft geen eigen parkeerplaatsenHet is betaald parkeren op straatBewoners kunnen een parkeervergunning aanvragen bij de gemeente Amsterdam.LocatieWonen in de Rivierenbuurt betekent alles binnen handbereik!Van speciaalzaken en boetieks op de Maasstraat tot gezellige cafés en restaurants op de Scheldestraat. Uitstekende bereikbaarheid : Station RAI en Amstel op fietsafstand, meerdere tram- en busverbindingen en snelle toegang tot de A10. En voor groen en ontspanning heb je het Martin Luther Kingpark en de Amstel om de hoek, voor een wandeling of hardlooprondje.Wat moet u zelf doen in de woning?De woning is een gerenoveerde woning. Dit betekent dat u zelf nog het een en ander in de woning moet doen. U kunt hierbij denken aan onder andere:Een vloer (bijv. laminaat) en een ondervloer (min. 10 decibel geluid reducerend is verplicht) leggen en plinten plaatsenHet voorbehandelen van de wandenSchilderen en/of behangen van de wandenBevestigen van gordijnrailsOphangen van raambekleding (bijv. gordijnen)Verzamel alvast uw gegevensKrijgt u een uitnodiging om deze woning te bekijken en wilt u komen kijken? Verzamel dan alvast uw gegevens voor Ymere.  Want als u de woning komt bekijken en daarna laat weten dat u deze wilt huren, moet uuw gegevensde volgende werkdag voor 12.00 uur aanleveren. Ook als u niet kandidaat nummer 1 bent levert u de gevraagde documenten in! Kijk oponze websiteof indeze folder wat u moet aanleveren. Levert u uw gegevens niet op tijd aan? Dan krijgt u geen aanbod. U kunt de woning niet meer huren.Een intakegesprek kan onderdeel zijn van de toewijzingsprocedure. Na het gesprek hoort u van ons of wij u de woning toewijzen.BezichtigingKandidatennummer 1 t/m 10 worden uitgenodigd voor een bezichtiging op 27 maart om 11:00.  u geen uitnodiging heeft dan kan u niet komen bezichtigen. Deze datum is onder voorbehoud u krijgt een notificatie per mail als de datum wijzigt.Tot slotDe oplevering van de woning kan afwijken van de advertentietekst, de plattegrond, de foto’s en de bezichtiging in verband met eventuele werkzaamheden.Aan deze advertentie kunt u geen rechten ontlenen.

Map