Rental property Amsterdam

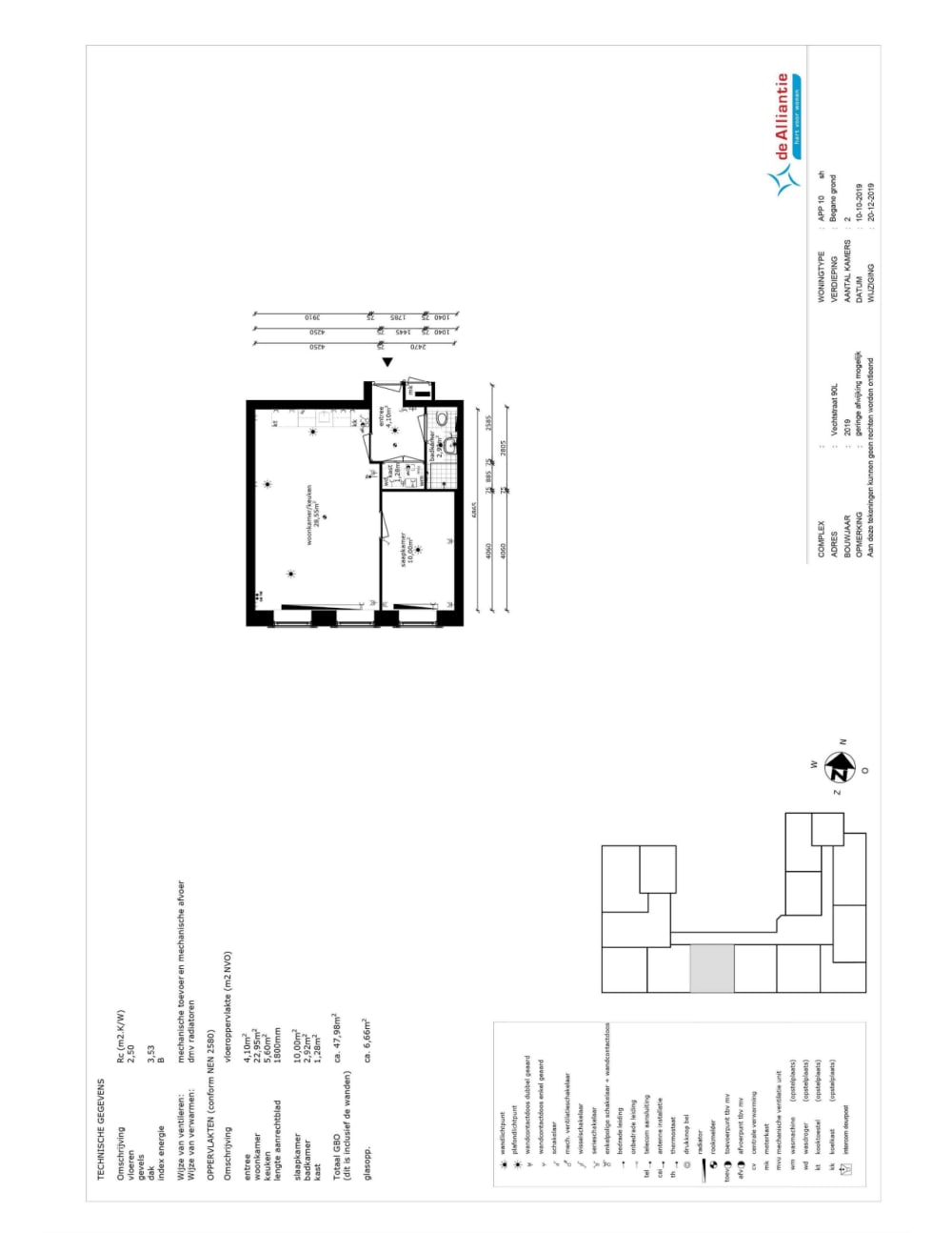
Vechtstraat 90L, Amsterdam

Quick summary

Location
Amsterdam
Rental price
€727.42
Property type
Portiekwoning
Area:
43 m2
Rooms:
2
Beds:
1
Waiting time:
(not set)
Date available:
Jul 9, 2025
Maximum income:
€39.055.00
Status:
Expired

Property description

Let op: Deze woning wordt toegewezen op motivatie.De servicekosten zijn onder voorbehoud.Word jij onze nieuwe buur?Ben je tussen de 25 en 27 jaar? Ben je sociaal, actief en vind je het leuk om tussen andere jongeren uit Nederland en de rest van de wereld te wonen? Dan is Baak Zuid in de Rivierenbuurt misschien iets voor jou. Wij zoeken een nieuwe buur. Interesse? Lees dan verder.Baak Zuid is een community. Wat betekent dat?In Baak Zuid wonen Nederlandse jongeren en statushouders met elkaar. We staan voor onze buren klaar en maken er met elkaar een leuke tijd van. We doen regelmatig leuke dingen samen, zoals sporten, samen koken en eten, gamen, de Nederlandse taal oefenen en nog veel meer. Spreekt dit je aan? Dan ben jij misschien de nieuwe buur die we zoeken.In Baak Zuid heb je je eigen appartementHet complex is in 2019 gerenoveerd. De 2-kamerwoning Vechtstraat 94 -F vind je op de 2e verdieping.Ook kun je gebruikmaken van de gezamenlijke ruimtes, zoals de kapel, het dakterras en de gedeelde binnentuin. Genoeg leuke plekken dus om elkaar te ontmoeten, een praatje te maken en leuke activiteiten te organiseren.Je woont maximaal 5 jaar in Baak ZuidJe krijgt een jongerencontract. Daardoor vervalt je inschrijfduur bij Woningnet niet. Dat scheelt als je straks op zoek gaat naar je volgende woning.Wat is er bij de huurprijs inbegrepen?Je huurprijs is inclusief verwarming, water, elektriciteit, internet en gebruik van de wasmachine en wasdroger.Voordat je reageert op de woning, nog even dit:De woningen in Baak Zuid zijn niet geschikt voor jongeren met kinderen.Een eerste groep kandidaten wordt uitgenodigd voor een verplicht bij te wonen bijeenkomst. Er bestaat dan tevens de mogelijkheid om de woning te bezichtigen.De aanwezige kandidaten ontvangen vervolgens een vragenlijst aan de hand waarvan wordt gevraagd om de motivatie voor het wonen in Baak Zuid toe te lichten;Vul deze vragenlijst zo eerlijk mogelijk in. Het is belangrijk dat jij jezelf met plezier in het project ziet wonen en een bijdrage wilt leveren aan de community;Na beoordeling van de ingevulde vragenlijsten wordt de kandidaat op de wachtlijst met de langste inschrijfduur in WoningNet voor deze woning benaderd.Nog steeds enthousiast? En is er een match van beide kanten? Dan krijg je een voorlopige aanbieding. Je stuurt ons een aantal documenten, waaronder een inkomensverklaring. Worden alle documenten goedgekeurd? Dan is de woning voor jou!Bij de woning krijg je een jongerencontract voor vijf jaar.De advertentie is gewijzigd op 10-07-2025 10:27:01.

Map