Rental property Amsterdam

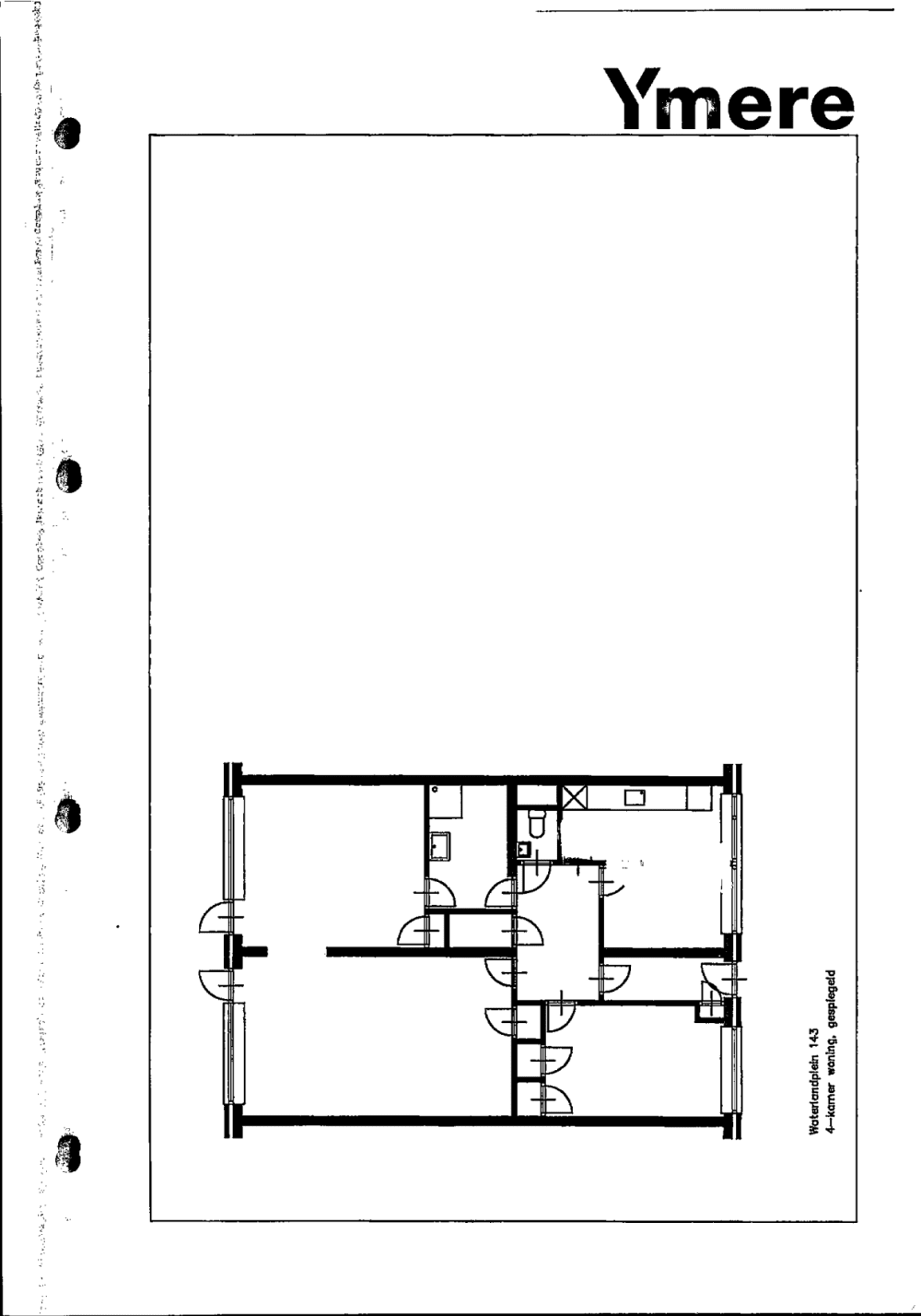
Waterlandplein 143, Amsterdam

Quick summary

Location
Amsterdam
Rental price
€861.95
Property type
Appartement
Area:
73 m2
Rooms:
3
Beds:
2
Waiting time:
(not set)
Date available:
Apr 1, 2025
Maximum income:
(not set)
Status:
Expired

Property description

Driekamer galerijflat op de 6everdiepingWoningGesloten keukenBadkamer en toilet apartDe woning heeft leef- en contactgeluidenBovenburenBalkonBergingLiftBijzonderhedenIn de woning worden momenteel nog werkzaamheden uitgevoerd, waardoor de woning niet volledig overeenkomt met de situatie op de foto's.Vanaf 7 april 2025 is er betaald parkerenStaat van de woningYmere levert iedere woning op met basiskwaliteit: schoon, heel en veilig.Wat moet u aan de woning doen?Houdt er rekening mee dat u zelf nog het een en ander moet doen om de woning naar uw smaak te maken. Denk hierbij aan het leggen van ondervloeren en vloeren (minimaal 10cha decibel reducerend), schilderen en behangen van de wanden en plafondsIn de buurtOpenbaar vervoerScholenWinkelsSupermarktHorecaParkenUitvalswegenBetaald parkerenVerzamel alvast uw gegevensKrijgt u een uitnodiging om deze woning te bekijken en wilt u komen kijken? Verzamel dan alvast uw gegevens voor Ymere.  Want als u de woning komt bekijken en daarna laat weten dat u deze wilt huren, moet u uw gegevens de volgende werkdag voor 12.00 uur aanleveren. Ook als u niet kandidaat nummer 1 bent levert u de gevraagde documenten in!  Kijk op onzewebsiteof in dezefolderwat u moet aanleveren. Levert u uw gegevens niet op tijd aan? Dan krijgt u geen aanbod. U kunt de woning dan niet meer huren.BezichtigingKandidatennummer 1 t/m 10 worden uitgenodigd voor een bezichtiging op dinsdag 25 maart 2025 om 13:00 uur. Als u geen uitnodiging heeft dan kan u niet komen bezichtigen. Deze datum is onder voorbehoud u krijgt een notificatie per mail als de datum wijzigt.Tot slotDe oplevering van de woning kan afwijken van de advertentietekst, de plattegrond, de foto’s en de bezichtiging in verband met eventuele werkzaamheden.Aan deze advertentie kunt u geen rechten ontlenen.

Map