Rental property Badhoevedorp

Keizersweg 201, Badhoevedorp

Quick summary

Location
Badhoevedorp
Rental price
€835.09
Property type
Portiekwoning
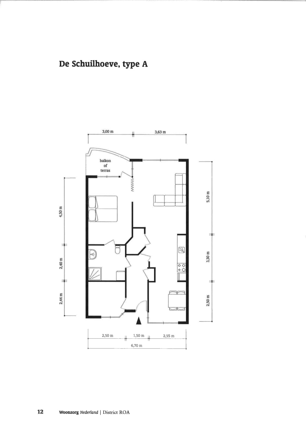
Area:
58 m2
Rooms:
3
Beds:
2
Waiting time:
(not set)
Date available:
Feb 1, 2025
Maximum income:
(not set)
Status:
Expired

Property description

De Schuilhoeve | Woonzorg Nederland - betaalbare woningen voor seniorenRuime 3-kamerwoning op de begane grond van het complex bij entree C  ( 201 )Deze woning ligt aan de zijkant met uitzicht op de Keizersweg van het complex.De woning is voorzien van dubbelglas en collectieve cv, de huurprijs is inclusief voorschotbedrag stookkosten.- WEL overname in de woning (Hordeur en raambekleding )- Elektrisch koken, perilex aansluiting is aanwezig- Toilet in de badkamer- Aparte berging aanwezig op de begane grond- Vuilniscontainers op terrein- Grote gemeenschappelijke tuinBinnen 500 meter;- Huisarts/Gezondheidscentrum- Supermarkt- OV-halte- Kapper- RestaurantDe Schuilhoeveis gebouwd in 1997 en ligt in een rustige omgeving op loopafstand van het wandelbos Badhoevedorp. Het wooncomplex bestaat uit 178 zelfstandige driekamerwoningen, verdeeld over de begane grond en drie verdiepingen. De verdiepingen zijn zowel met trap als met een lift bereikbaar.In De Schuilhoeve zijn diverse voorzieningen zoals een ontmoetingsruimte en restaurant, een leestafel, een bibliotheek en een kapsalon. Op de eerste verdieping is een centrale zorgpost van de Amstelring die bewoners met een indicatie zorgverlening kan bieden. Ook de senioren uit de omringende wijken kunnen gebruik maken van de diensten die De Schuilhoeve aanbiedt. Er worden veel activiteiten georganiseerd zoals kaarten, koersbal, jeu de boules, sjoelen en bingo.Altijd iemand bereikbaarDe bewonersconsulent is het aanspreekpunt voor alle bewoners. Hij of zij maakt u graag wegwijs in uw nieuwe woonomgeving en ziet erop toe dat u er prettig en rustig kunt wonen. Daarbij zorgt hij of zij ervoor dat u precies de service krijgt die u wilt. Dus heeft u een wens: vraag het gerust, want uw bewonersconsulent denkt graag met u mee.U kunt van dinsdag tot en met donderdag van 08.30 tot 12.00 uur telefonisch terecht bij de bewonersconsulent. En anders krijgt u een collega aan de lijn. Na werktijden wordt er voor spoedgevallen automatisch doorgeschakeld naar de meldkamer

Map