Rental property Beverwijk

Evert van Dijkstraat 23, Beverwijk

Quick summary

Location
Beverwijk
Rental price
€704.71
Property type
Portiekwoning
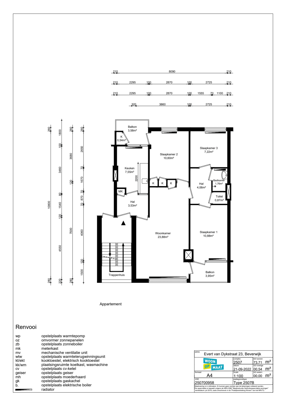
Area:
75 m2
Rooms:
4
Beds:
3
Waiting time:
(not set)
Date available:
Apr 15, 2025
Maximum income:
€39.055.00
Status:
Expired

Property description

4kamerappartement op de derde verdiepingWoning4 kamers, waarvan 3 slaapkamersDichte keuken met toegang tot het balkonBadkamer met douche en wastafelApart toiletTwee balkonsBijzonderhedenGratis parkeren voor de deurGunstige ligging winkelcentrum WijkerbaanCentrum Heemskerk en Beverwijk dichtbijBasisschool op loopafstandStaat van de woningWoonopmaat levert iedere woning op met basiskwaliteit: schoon, heel en veilig.Wat moet je aan de woning doen?Houdt er rekening mee dat je zelf nog het een en ander moet doen om de woning naar jouw smaak te maken. Denk hierbij aan het vervangen van ondervloeren en vloeren (minimaal 10 decibel reducerend), schilderen en behangen van de wanden en plafonds en schilderen van de kozijnen en deuren.Verhuurdatum: in overlegBezichtiging:De eerste 10 kandidaten ontvangen een uitnodiging voor een bezichtiging. Bezichtigen is noodzakelijk voor het accepteren van de woning. De bezichtiging is op dinsdag 22 april 2025 om 16:00 uur.

Map