Rental property Blaricum

Waterhoen 20, Blaricum

Quick summary

Location
Blaricum
Rental price
€764.14
Property type
Tussenwoning
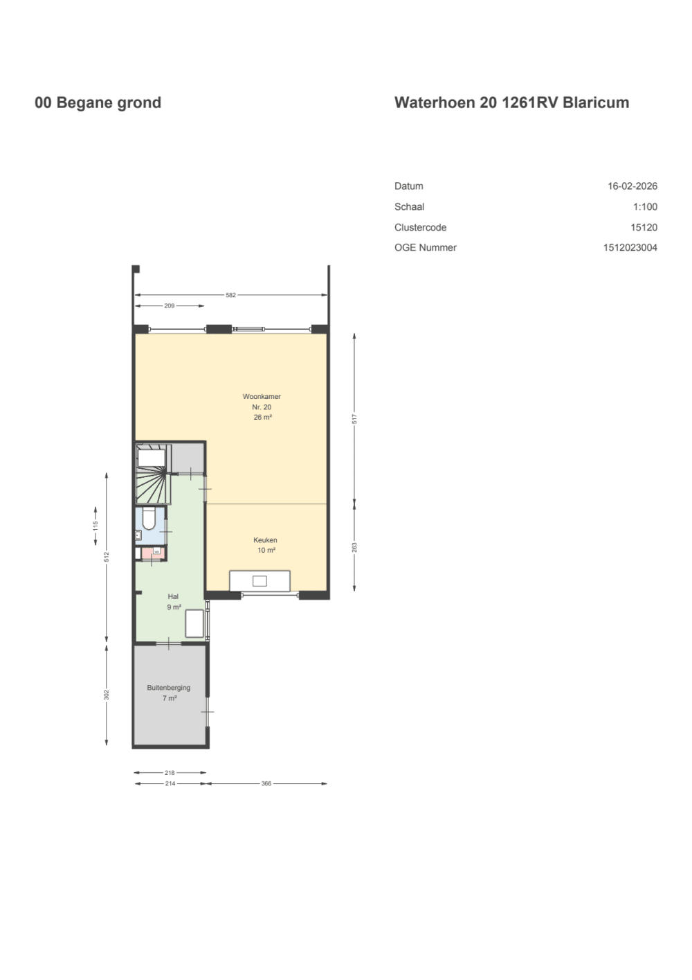
Area:
61 m2
Rooms:
4
Beds:
3
Waiting time:
(not set)
Date available:
Apr 2, 2026
Maximum income:
(not set)
Status:
Published
Respond

Property description

Waterhoen 20, Blaricumeengezinswoning met voor-, achtertuin, berging aan de voorzijde en royale zolderruimte bereikbaar via een vast trap. Open keuken. De woning is gelegen in de wijk Bijvanck en ligt op korte afstand van het winkelcentrum, scholen en bushalte.KenmerkenLET OP!Deze woning wordt aangeboden met lokale binding, lees de voorwaarden goed voordat u reageert.4-kamerwoning3 slaapkamers op de eerste verdieping.Open keukenBadkamer en toilet apartBuitenbergingAchtertuinGasgestookte combiketelEnergielabel ADe buurtGelegen aan de rand van de wijk, uitkijkend naar de Blaricummermeent. In de directe omgeving vindt u scholen, sportverenigingen, winkels en overige voorzieningen.Goed om te weten• De woningkenmerken en plattegrond kunnen afwijken van de werkelijkheid.Verzamel uw documenten op tijdWordt u uitgenodigd voor een bezichtiging? Zorg er dan voor dat uw documenten gereed zijn. Als u de eerste kandidaat bent, dient u deze binnen 3 dagen aan te leveren.BelangrijkLees de voorwaarden en spelregels zorgvuldig voordat u reageert en controleer of uw profielgegevens actueel zijn. Dit voorkomt teleurstellingen.Wanneer heb ik regionale binding?Je hebt regionale binding als je aan 1 of meer van deze voorwaarden voldoet:Jewoontminimaal 1 jaar achter elkaar in een gemeente in deze regio.Je moet op een adres in deze regio ingeschreven staan.Hiervoor heb je een uittreksel van de basisregistratie personen van jouw gemeente nodig.Briefadres is niet geldigJe hebteconomische bindingmet deze regio.Je werkt minimaal 19 uur per week in de regio. Je hebt een vast contract.voor uitzendkrachten geldt dat het uitzendbureau gevestigd is in de regio.Je volgt een dagopleiding van minimaal 19 uur per week in de regio.Je bent zelfstandig ondernemer en je staat ingeschreven bij de kamer van koophandel in de regio Gooi en Vechtstreek.Het bedrijf heeft een adres in de regio (postadres is onvoldoende)Je hebt eenmaatschappelijke bindingmet deze regio.Je hebt in de afgelopen 10 jaar minimaal 6 jaar achter elkaar in deze regio gewoond.Dit kun je bewijzen met een uittreksel van de basisregistratie personen van de gemeente.Let op: Een briefadres is niet geldig.Let op:als mantelzorger heb jegeenbinding.Een voorbeeldJe woont al langer dan 1 jaar in Hilversum.Je hebt regionale binding met alle gemeenten in de regio Gooi en Vechtstreek.Je krijgt voorrang als je reageert op een woning in Bussum.Als er tenminste in de woningadvertentie bij voorrangskenmerkenregionale bindingstaat.De woningzoekende met regionale binding en de hoogste zoekwaarde krijgt de woning aangeboden.Heb je geen regionale binding? Dan mag je gewoon reageren. Maar woningzoekenden die wel regionale binding hebben gaan voor.De woningcorporatie controleert of je regionale binding hebt als je een woning krijgt aangeboden.Lokale BindingJe hebt lokale binding als je aan 1 of meer van deze voorwaarden voldoet:Je woont minimaal 1 jaar achter elkaar in de gemeente.Je moet op een adres in deze gemeente ingeschreven staan.Let op: Een briefadres geldt nietHiervoor heb je een historisch adresuittreksel van jouw gemeente nodig.Je hebt economische binding met deze gemeente.Je werkt minimaal 19 uur per week in deze gemeente. Je hebt een vast contract.Voor uitzendkrachten geldt dat het uitzendbureau is gevestigd in deze gemeente.Je volgt een dagopleiding van minimaal 19 uur per week in deze gemeente.Je bent zelfstandig ondernemer en je staat ingeschreven bij de kamer van koophandel in deze gemeente.Het bedrijf heeft een adres in deze gemeente (postadres is niet voldoende).Je hebt een maatschappelijke binding met deze gemeente.Je hebt in de afgelopen 10 minimaal 6 jaar achter elkaar in deze gemeente gewoond.Dit kun je bewijzen met een historisch adresuittreksel van de gemeente.Geldt niet voor een briefadres.Let op:als mantelzorger heb jegeenlokale binding.

Map