Rental property Bussum

Beekmanstraat 4, Bussum

Quick summary

Location
Bussum
Rental price
€955.13
Property type
Tussenwoning
Area:
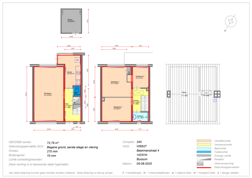
72 m2
Rooms:
4
Beds:
3
Waiting time:
(not set)
Date available:
Jan 29, 2026
Maximum income:
(not set)
Status:
Published
Respond

Property description

Beekmanstraat 4, BussumLeuke tussenwoning in rustige buurt met vrijstaande stenen berging, voor- en zonnige achtertuin op het zuidoosten met achterom. De woning ligt dicht bij de uitvalswegen en bevindt zich op loopafstand van winkels en natuurgebied.Indeling: entree/hal, kelderkast met meterkast, toilet, doorzon woonkamer, uitgebouwde dichte keuken met wasmachineaansluiting en deur naar de tuin.Verdieping: overloop, 3 in grootte variërende slaapkamers, badkamer met douche en vaste wastafel. Bergvliering met vlizotrap en cv opstelling.

Map