Rental property Bussum

Iepenlaan 458, Bussum

Quick summary

Location
Bussum
Rental price
€892.48
Property type
Benedenwoning
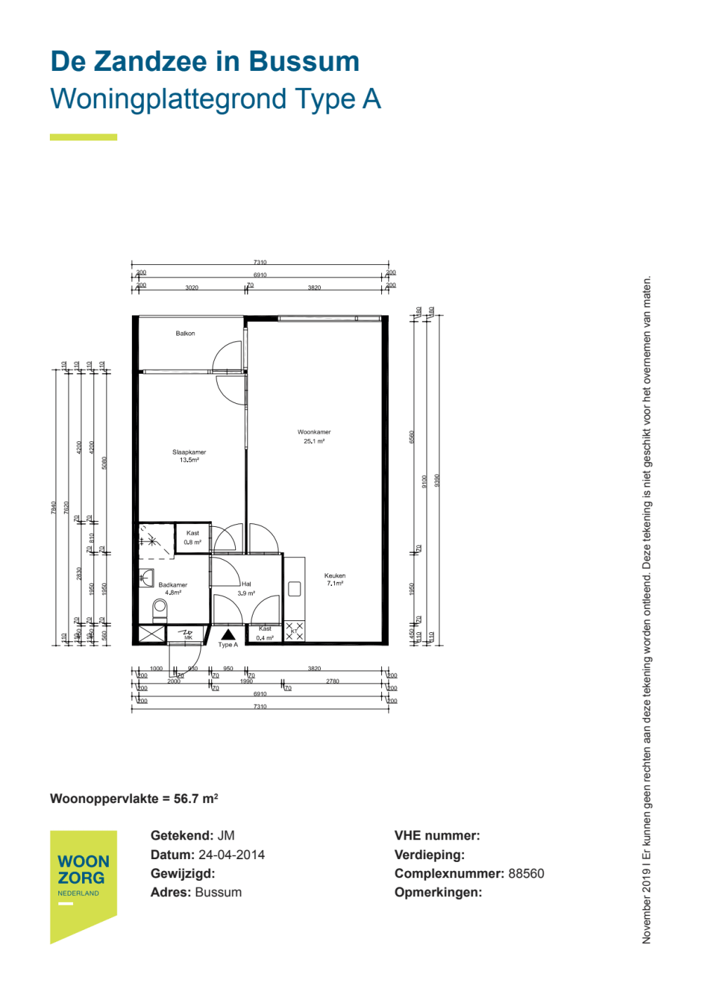
Area:
55 m2
Rooms:
2
Beds:
1
Waiting time:
(not set)
Date available:
Jan 23, 2026
Maximum income:
(not set)
Status:
Published
Respond

Property description

2 kamer appartement op de 4e verdieping van de Iepenflat. Nu de verduurzaming is afgerond gaan we de vrij gekomen woningen weer aanbieden.In Bussum ligt het woonzorgcentrum De Zandzee. Dit woonzorgcentrum bestaat uit het verzorgingshuis De Zandzee waar Vivium Zorggroep zorg levert, en twee deelcomplexen met zelfstandige woningen: de aanleunwoningen van De Zandzee en de zelfstandige woningen van De Iepenflat.Woonzorgcentrum De Zandzee ligt in de mooie en karakteristieke wijk het Spiegel in Bussum en is gebouwd in 1975. Het ligt in een groene, parkachtige omgeving, dicht bij de heide. Naast De Zandzee ligt een zwembad, het NS-station is in de buurt en één keer per week komt een SRV-wagen langs.  In het hoofdgebouw van De Zandzee is een ontmoetingscentrum voor de wijk gehuisvest, genaamd Spieghelwijck onder leiding van Versa Welzijn.Aanleunwoningen De ZandzeeHuisnummer 358 t/m 466. Gekoppeld aan het verzorgingshuis ligt De Zandzeeflat. In dit aanleundeel bevinden zich 56 tweekamerwoningen voor zelfstandige bewoning. De woningen hebben een oppervlakte van 50-55 m2 en beschikken allen over een ruim balkon. De zelfstandige huurders van De Zandzeeflat kunnen gebruik maken van de faciliteiten en voorzieningen van het verzorgingshuis. In de kelder van het complex bevinden zich de bergingen. De woningen zijn verdeeld over vier verdiepingen en zijn middels twee liften of het centrale trappenhuis bereikbaar. De aanleunwoningen van de Zandzee worden verhuurd door Woonzorg Nederland.Wooncomplex De IepenflatHuisnummer 200 t/m 324. In de Iepenflat – eveneens gelegen op het terrein – bevinden 63 tweekamerwoningen voor zelfstandige bewoning. De woningen hebben een oppervlakte van 50-55 m2 en beschikken allen over een ruim balkon. Ook de zelfstandige huurders van de Iepenflat kunnen gebruikmaken van de faciliteiten en voorzieningen van het verzorgingshuis De Zandzee. Op de begane grond bevinden zich enkele garages, die u als bewoner kunt huren en een container voor afval en oud papier. De woningen zijn verdeeld over vier verdiepingen en zijn middels een lift of het centrale trappenhuis bereikbaar. De woningen van de Iepenflat worden verhuurd door Woonzorg Nederland.Diensten vanuit ViviumVanuit Vivium Zorggroep kunt u als bewoner diverse zorgpakketten afnemen. Voor meer informatie over de zorgwoningen kunt u contact opnemen met Vivium Zorggroep.http://www.vivium.nlFaciliteiten en voorzieningenZowel de bewoners van De Zandzee als ook huurders van De Iepenflat kunnen gebruik maken van gemeenschappelijke ruimten zoals het restaurant, de bibliotheek, het verenigingsleven in het complex. Verder zit er in het hoofdgebouw een kapper en een fysiotherapeut met sportfaciliteiten. Personenalarmering kan men zelf regelen via Zorgalarm Nederland. Op De Iepenflat is een eigen bewonersconsulent van Woonzorg Nederland aanwezig.

Map