Rental property Callantsoog

Van Brederodestraat 27, Callantsoog

Quick summary

Location
Callantsoog
Rental price
€900.07
Property type
Eengezinswoning
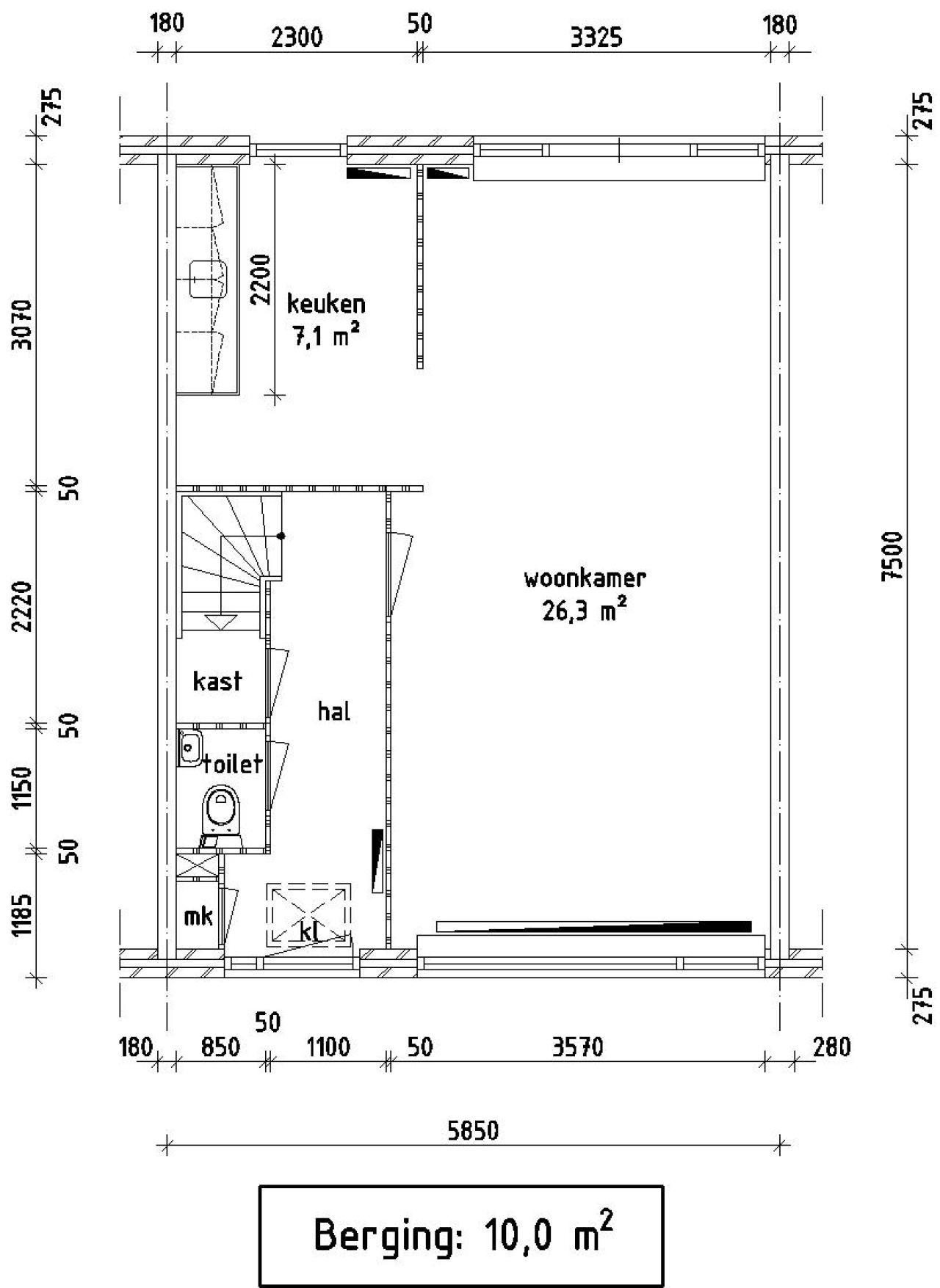
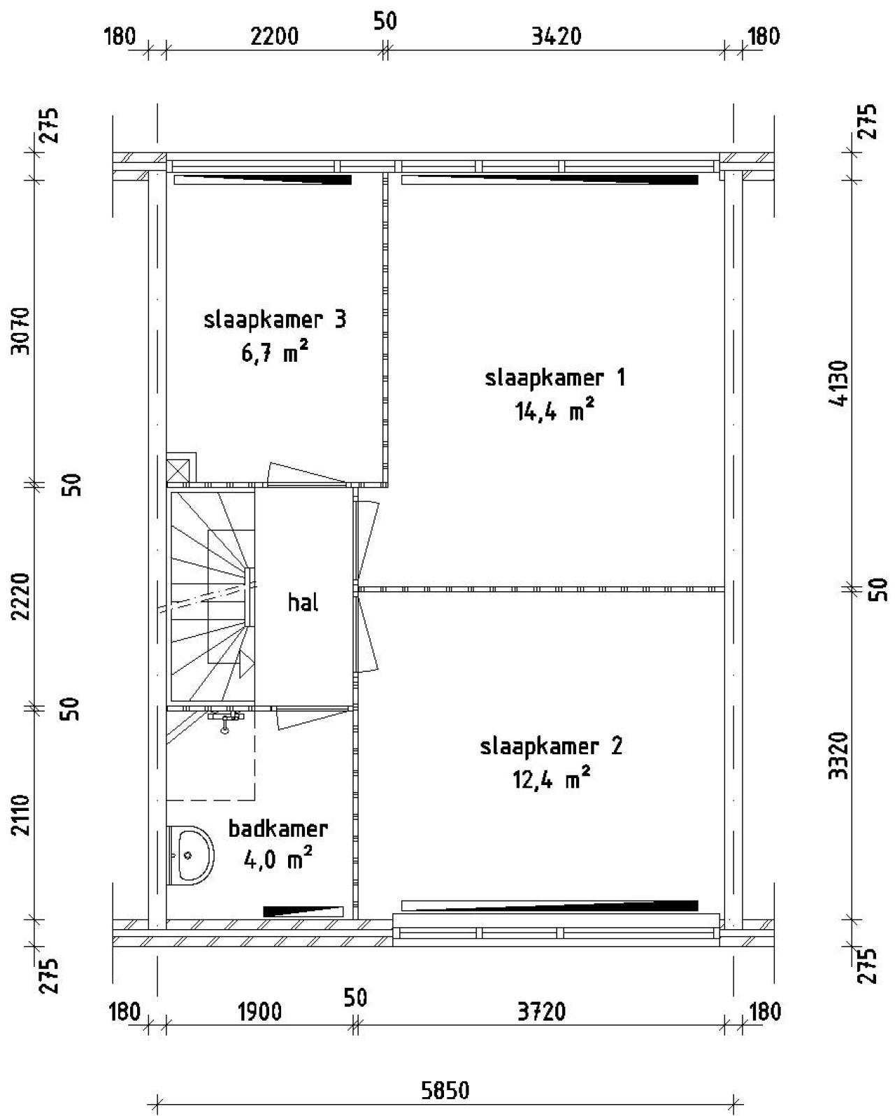
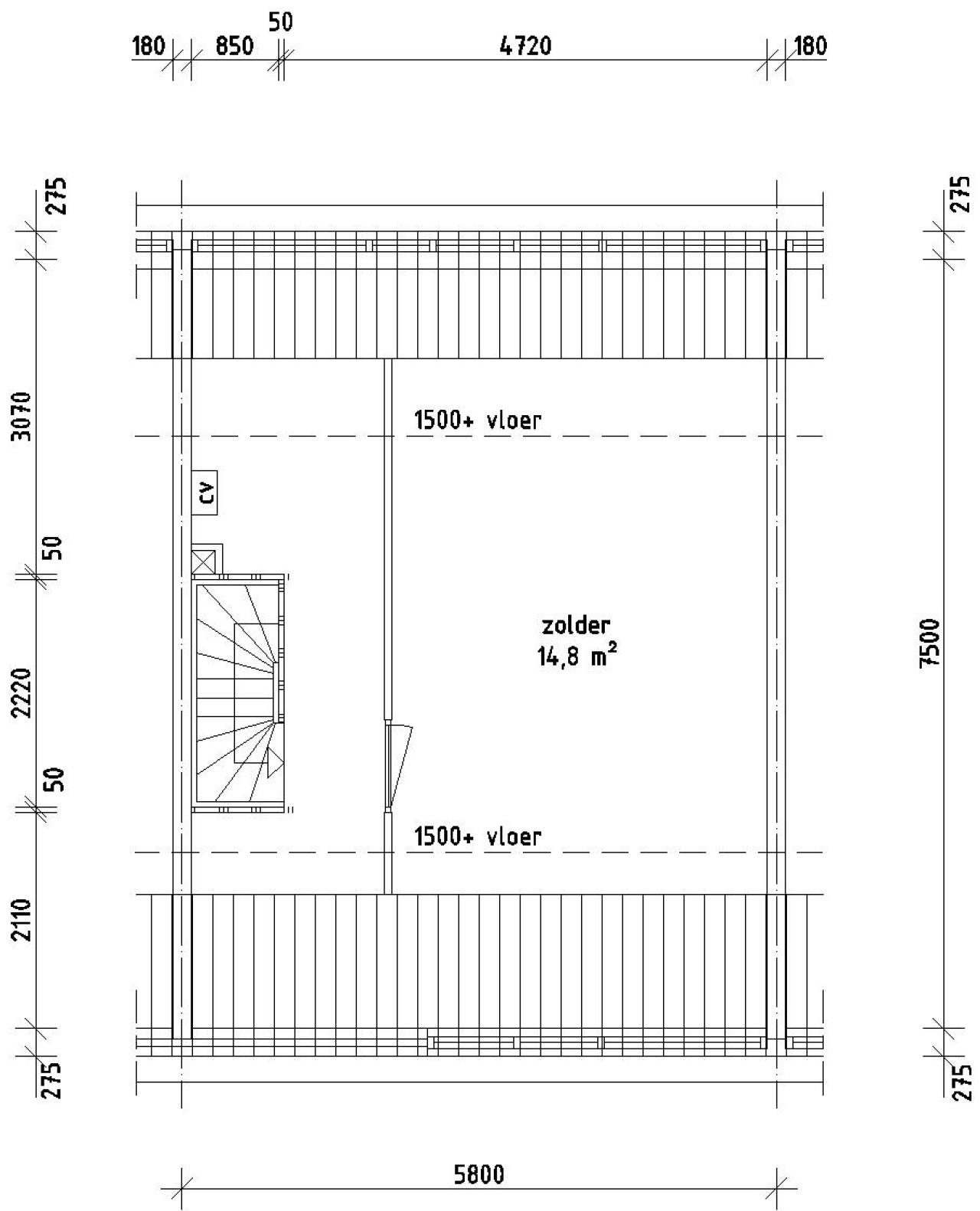
Area:
96 m2
Rooms:
4
Beds:
3
Waiting time:
(not set)
Date available:
Aug 19, 2025
Maximum income:
(not set)
Status:
Expired

Property description

Map