Toggle navigation
Provinces
Noord-Brabant
Zuid-Holland
Noord-Holland
Gelderland
Limburg
Overijssel
Utrecht
Groningen
Friesland
Drenthe
Zeeland
Flevoland
Vlaams Gewest
Cities
Groningen
Amsterdam
Den Haag
Leeuwarden
Hoogezand
Breda
Utrecht
Oosterhout
Leiden
Maastricht
Tilburg
Amstelveen
Almere
Arnhem
Almelo
Home
Home
Social housing listing
Noord-Holland
Den Helder
Asterplein 3
Rental property Den Helder
Asterplein 3,
Den Helder
Previous
Next
Quick summary
Location
Den Helder
Rental price
€533.81
Property type
Eengezinswoning
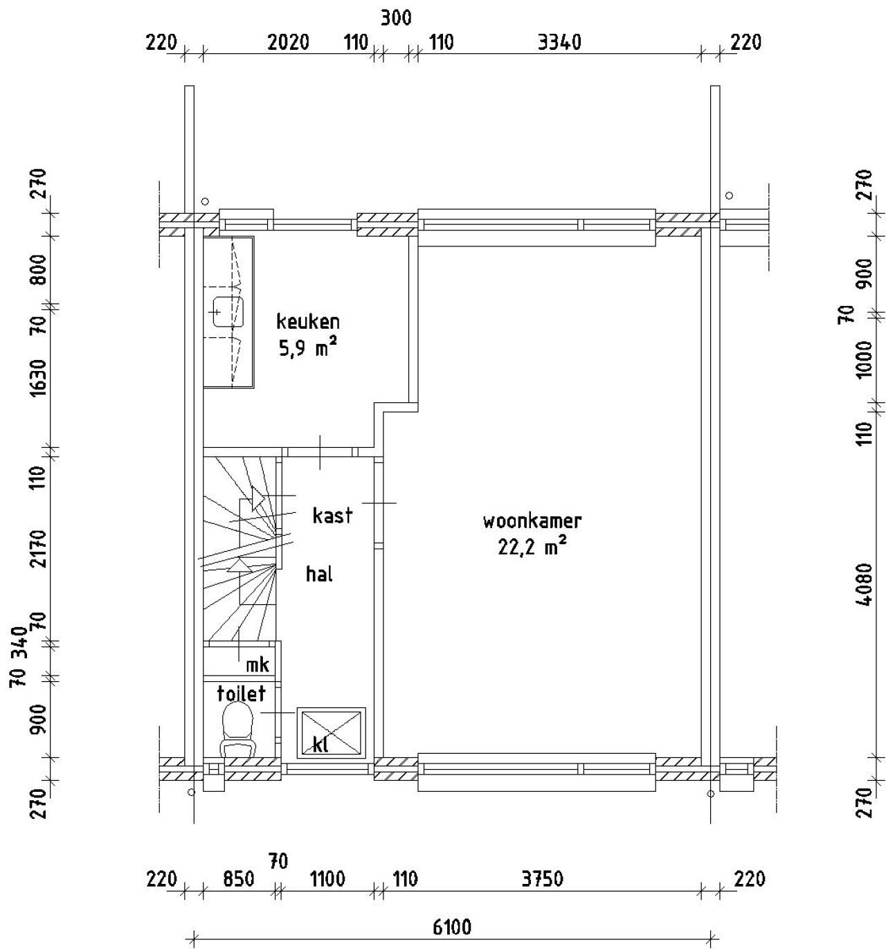
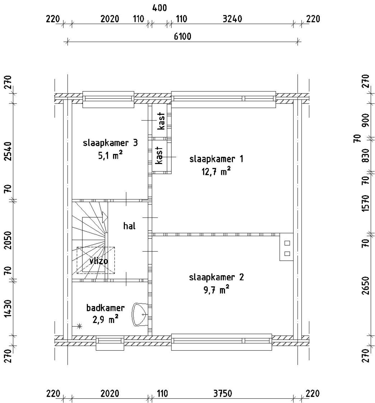
Area:
84 m
2
Rooms:
4
Beds:
3
Waiting time:
(not set)
Date available:
Jan 19, 2023
Maximum income:
€39.055.00
Status:
Expired
Property description
" "
Map