Toggle navigation
Provinces
Noord-Brabant
Zuid-Holland
Noord-Holland
Gelderland
Limburg
Overijssel
Utrecht
Groningen
Friesland
Drenthe
Zeeland
Flevoland
Vlaams Gewest
Cities
Den Haag
Amsterdam
Groningen
Breda
Utrecht
Leeuwarden
Gorinchem
Eindhoven
Almere
Zwolle
Dordrecht
Zoetermeer
Arnhem
's-Hertogenbosch
Enschede
Home
Home
Social housing listing
Noord-Holland
Den Helder
De Wetstraat 25
Rental property Den Helder
De Wetstraat 25,
Den Helder
Previous
Next
Quick summary
Location
Den Helder
Rental price
€857.80
Property type
Eengezinswoning
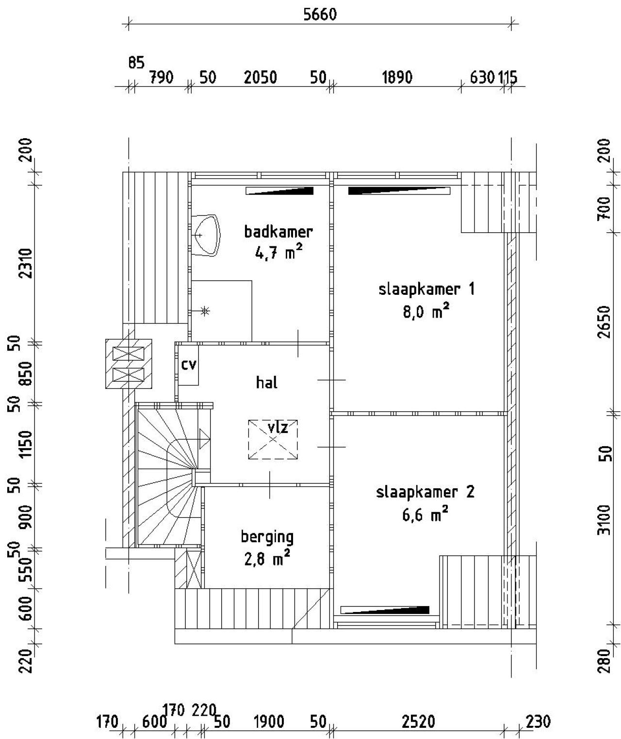
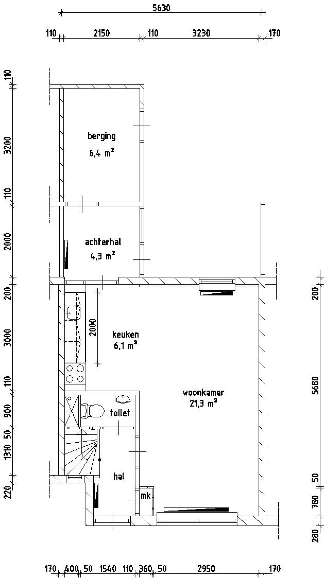
Area:
60 m
2
Rooms:
3
Beds:
2
Waiting time:
(not set)
Date available:
Dec 12, 2025
Maximum income:
(not set)
Status:
Expired
Property description
Map