Toggle navigation
Provinces
Noord-Brabant
Zuid-Holland
Noord-Holland
Gelderland
Limburg
Overijssel
Utrecht
Groningen
Friesland
Drenthe
Zeeland
Flevoland
Vlaams Gewest
Cities
Groningen
Veenendaal
Amsterdam
Zwolle
Utrecht
Breda
Harderwijk
Leiden
Leeuwarden
Dordrecht
Stadskanaal
Winschoten
Tilburg
Assen
Den Haag
Home
Home
Social housing listing
Noord-Holland
Den Helder
De Wetstraat 37
Rental property Den Helder
De Wetstraat 37,
Den Helder
Previous
Next
Quick summary
Location
Den Helder
Rental price
€872.61
Property type
Eengezinswoning
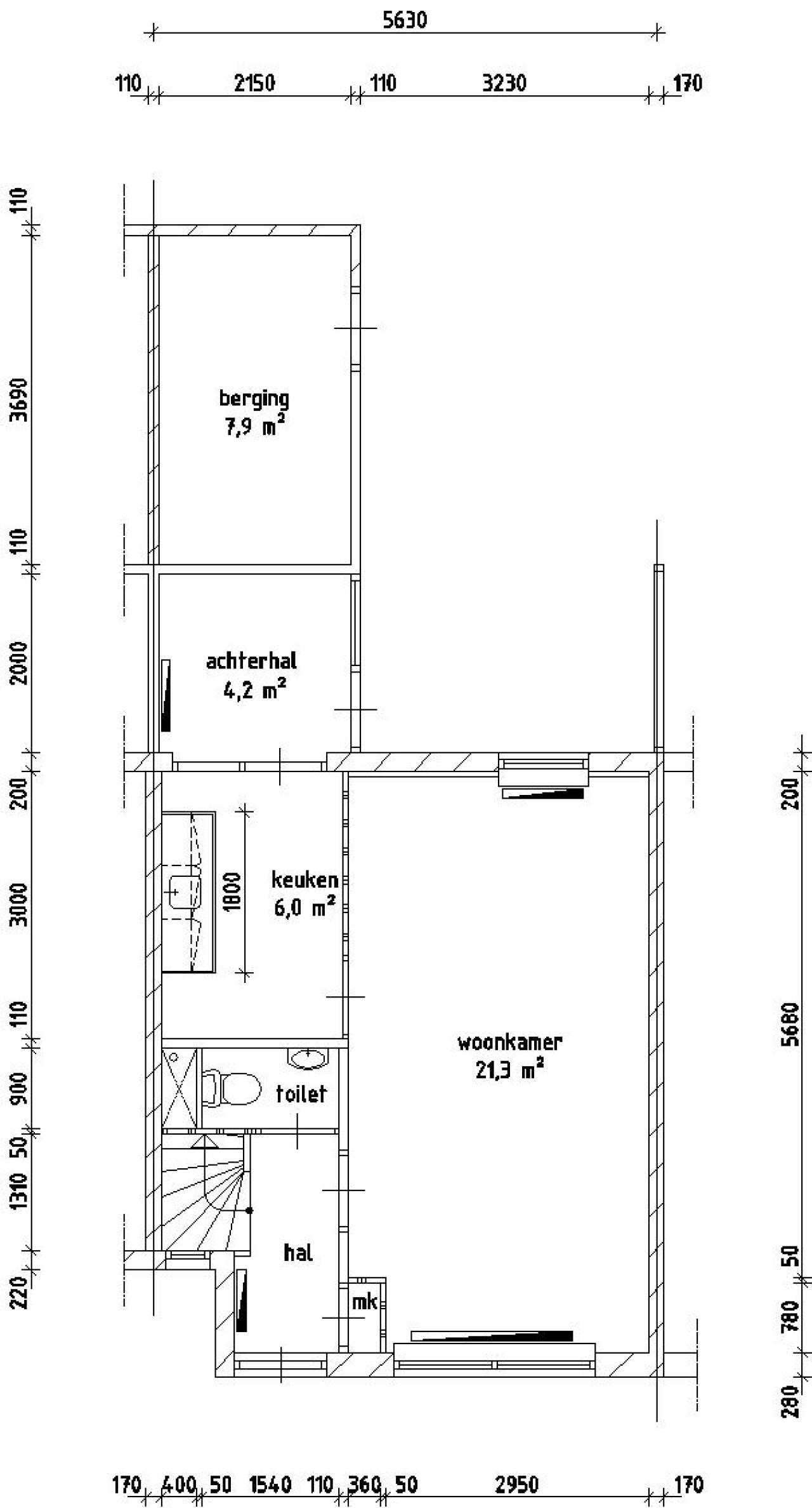
Area:
62 m
2
Rooms:
3
Beds:
2
Waiting time:
(not set)
Date available:
Jan 16, 2026
Maximum income:
(not set)
Status:
Expired
Property description
Map