Toggle navigation
Provinces
Noord-Brabant
Zuid-Holland
Noord-Holland
Gelderland
Limburg
Overijssel
Utrecht
Groningen
Friesland
Drenthe
Zeeland
Flevoland
Vlaams Gewest
Cities
Amsterdam
Groningen
Leeuwarden
Den Haag
Utrecht
Breda
Leiden
Almere
Amstelveen
Tilburg
Maastricht
Haarlem
Roosendaal
Alphen aan den Rijn
Hilversum
Home
Home
Social housing listing
Noord-Holland
Den Helder
Duinroosstraat 319
Rental property Den Helder
Duinroosstraat 319,
Den Helder
Previous
Next
Quick summary
Location
Den Helder
Rental price
€700.44
Property type
Appartement
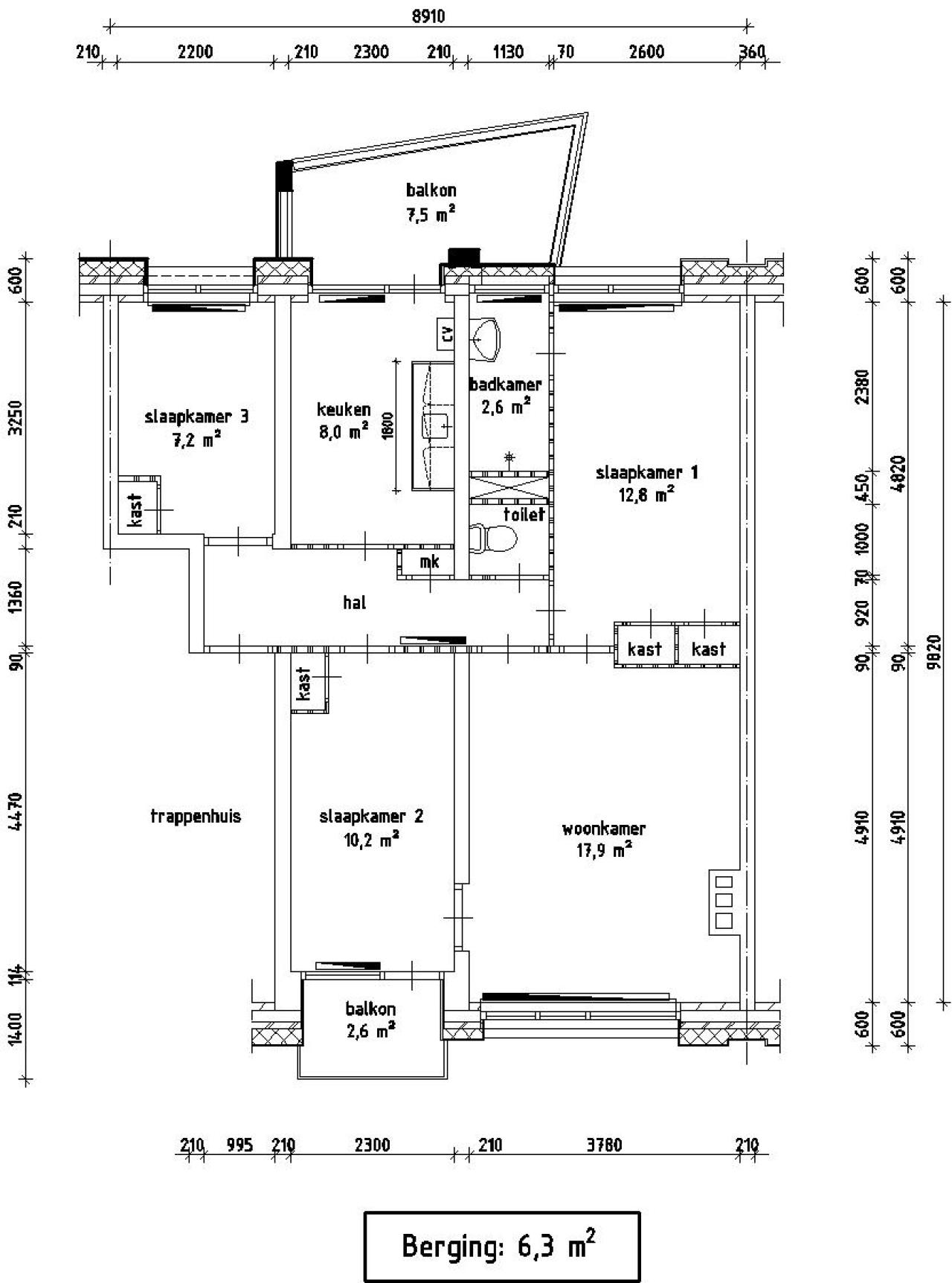
Area:
65 m
2
Rooms:
4
Beds:
3
Waiting time:
(not set)
Date available:
Jan 15, 2025
Maximum income:
€39.055.00
Status:
Expired
Property description
Map