Rental property Den Helder

Gerrit Pietersz Blankmanstraat 146, Den Helder

Quick summary

Location
Den Helder
Rental price
€713.02
Property type
Appartement
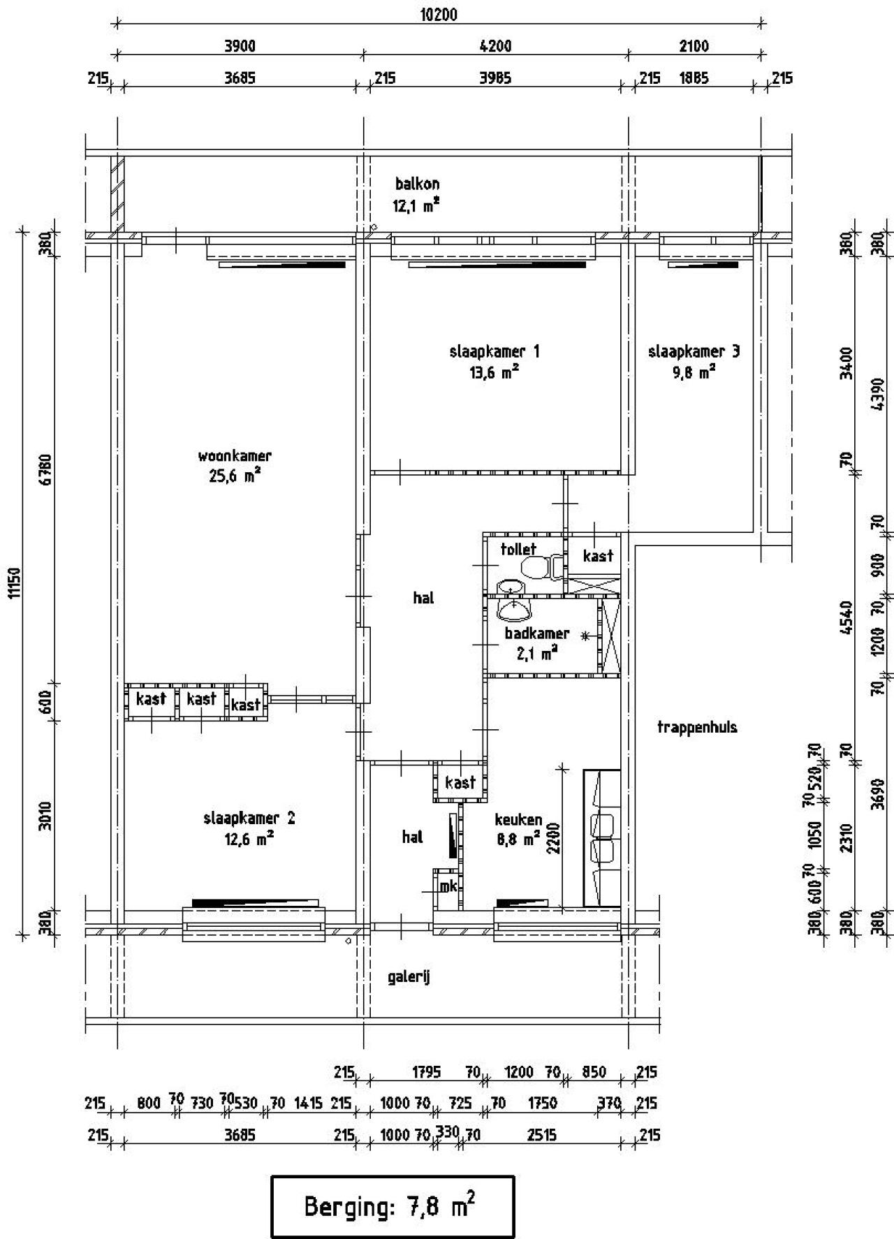
Area:
80 m2
Rooms:
4
Beds:
3
Waiting time:
(not set)
Date available:
Jan 27, 2026
Maximum income:
€39.055.00
Status:
Published
Respond

Property description

Map