Rental property Den Helder

IJsselmeerstraat 43, Den Helder

Quick summary

Location
Den Helder
Rental price
€605.07
Property type
Appartement
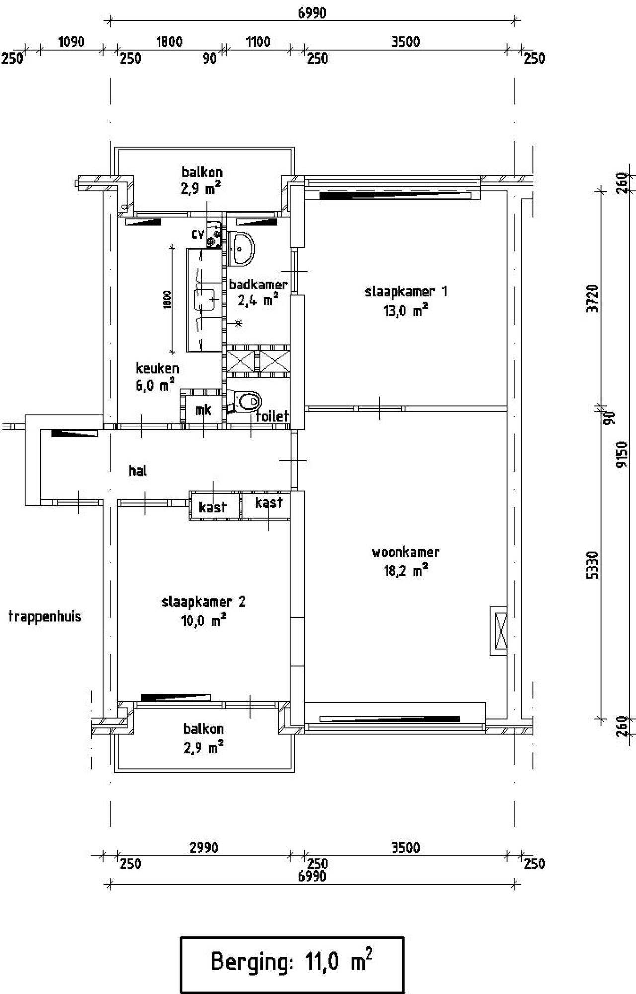
Area:
61 m2
Rooms:
3
Beds:
2
Waiting time:
(not set)
Date available:
Dec 23, 2025
Maximum income:
€39.055.00
Status:
Published
Respond

Property description

Map