Toggle navigation
Provinces
Noord-Brabant
Zuid-Holland
Noord-Holland
Gelderland
Limburg
Overijssel
Utrecht
Groningen
Friesland
Drenthe
Zeeland
Flevoland
Vlaams Gewest
Cities
Groningen
Den Haag
Amsterdam
Leeuwarden
Breda
Hoogezand
Bergen op Zoom
Oosterhout
Utrecht
Haarlem
Arnhem
Tilburg
Leiden
Maastricht
Enschede
Home
Home
Social housing listing
Noord-Holland
Den Helder
Kuiperstraat 44
Rental property Den Helder
Kuiperstraat 44,
Den Helder
Previous
Next
Quick summary
Location
Den Helder
Rental price
€763.99
Property type
Eengezinswoning
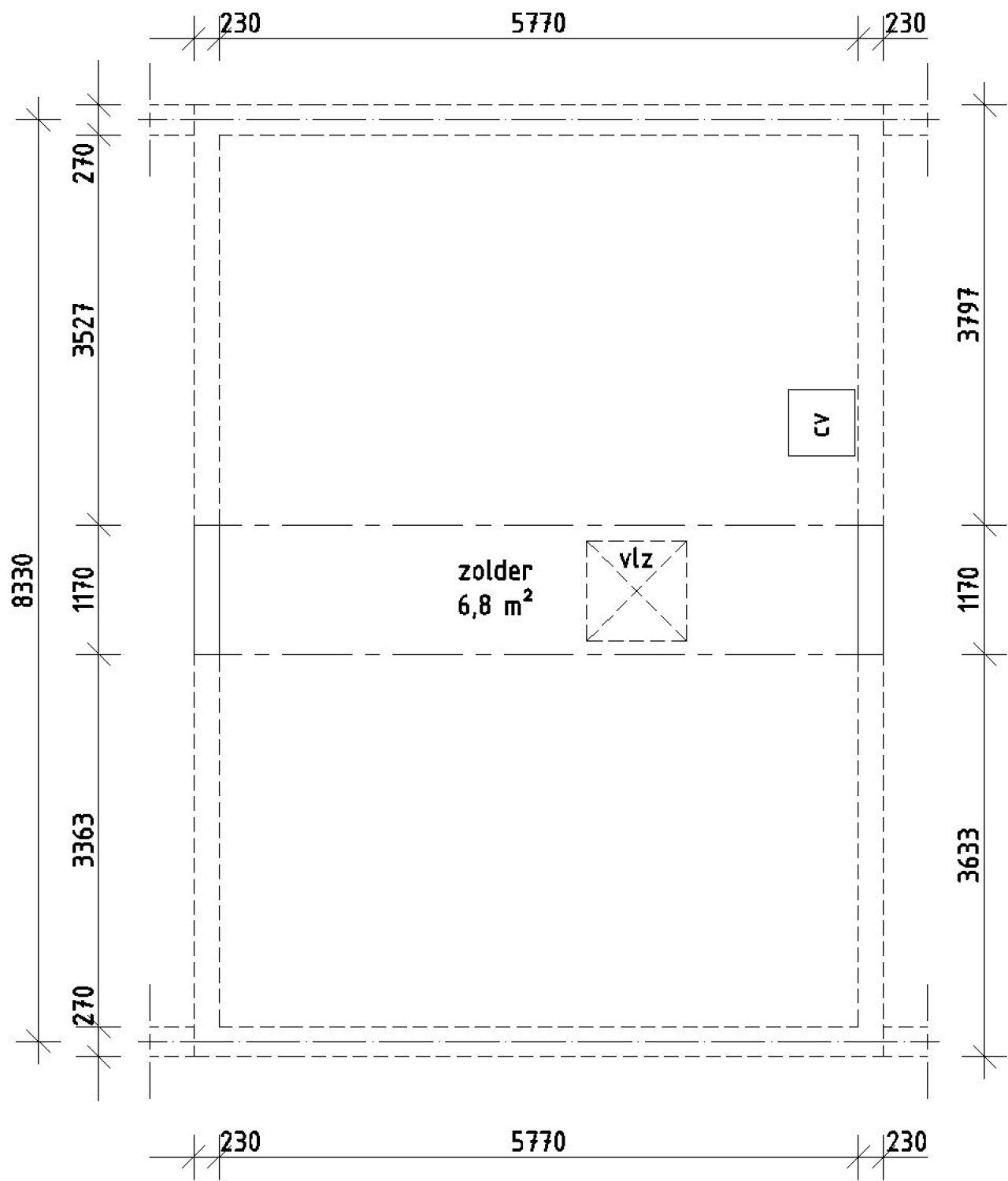
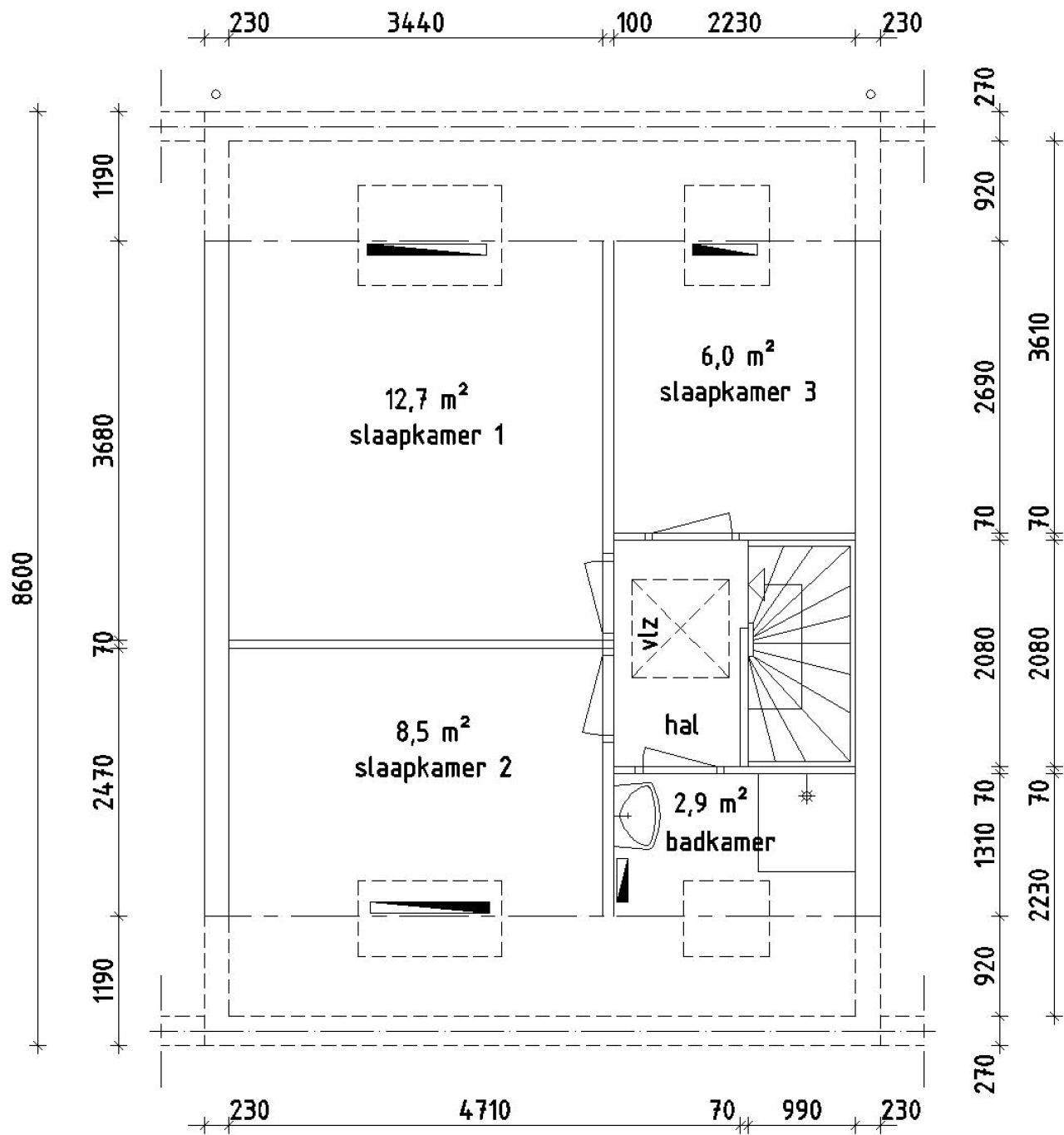
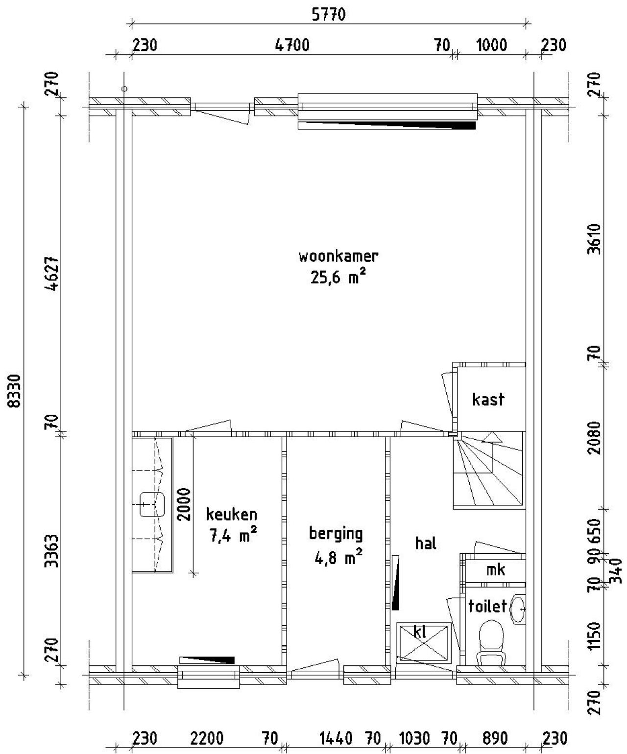
Area:
75 m
2
Rooms:
4
Beds:
3
Waiting time:
(not set)
Date available:
Jan 22, 2025
Maximum income:
(not set)
Status:
Expired
Property description
Map