Rental property Den Helder

Langestraat 22, Den Helder

Quick summary

Location
Den Helder
Rental price
€713.02
Property type
Appartement
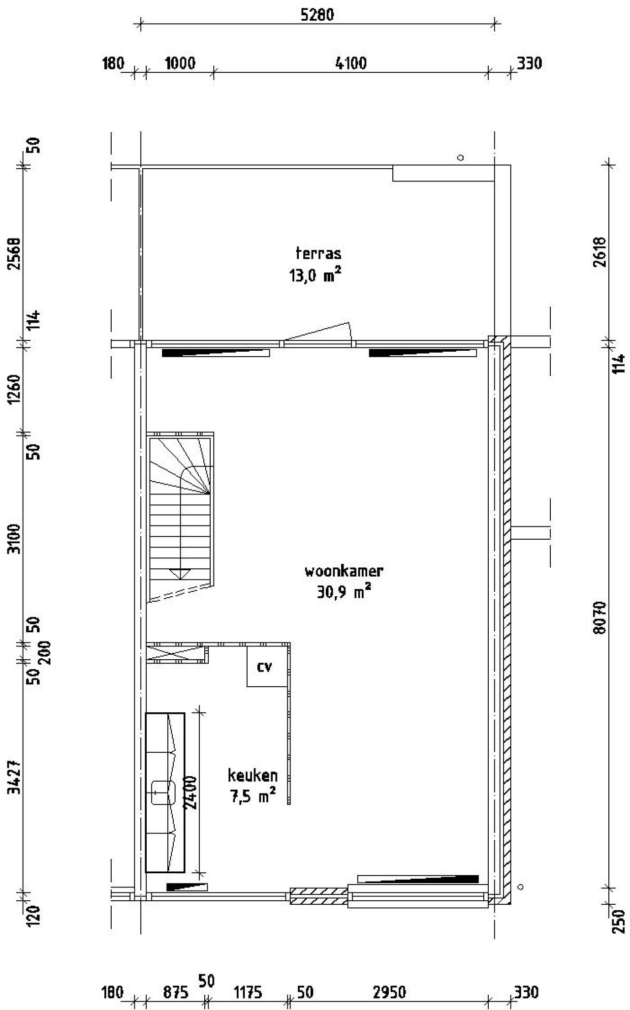
Area:
86 m2
Rooms:
4
Beds:
3
Waiting time:
(not set)
Date available:
Jan 12, 2026
Maximum income:
€39.055.00
Status:
Published
Respond

Property description

**Groepsbezichtiging 26 januari om 10.00 uur!** Wij nodigen de eerste 15 kandidaten van de kandidatenlijst uit voor een groepsbezichtiging. De bezichtiging vindt plaats op **26 januari 2026 om 10.00 uur**. Kunt u niet komen dan kunt u iemand machtigen om namens u te kijken. Komt u de woning niet bezichtigen dan slaan wij u over voor deze woning. U mag maximaal één extra persoon meenemen naar de bezichtiging. Tijdens de bezichtiging vertellen medewerkers van de Woningstichting u meer over de buurt en de woning zelf. **Interesse** U dient dezelfde dag aan te geven of u nog steeds interesse heeft in de woning. Wij adviseren u om alvast om tijdens de reactiefase onderstaande gegevens te uploaden in uw Woonmatch-account. U krijgt namelijk na de bezichtiging maximaal één werkdag, tot en met 27 januari 2026, de tijd om uw documenten te uploaden. Zijn de gegevens dan niet compleet of heeft u aangegeven geen interesse te hebben dan slaan wij u over op de kandidatenlijst. ***(Verplichten documenten** Onderstaande documenten zijn van u en uw partner geüpload in uw Woonmatch account:

Map