Rental property Den Helder

Lupinestraat 12, Den Helder

Quick summary

Location
Den Helder
Rental price
€673.28
Property type
Eengezinswoning
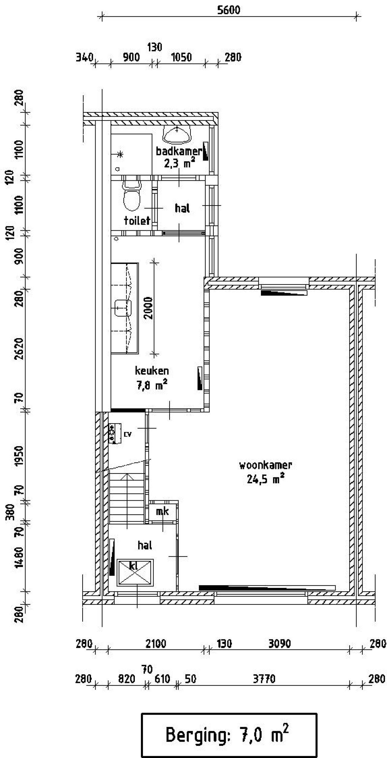
Area:
64 m2
Rooms:
4
Beds:
3
Waiting time:
(not set)
Date available:
Jan 19, 2026
Maximum income:
€39.055.00
Status:
Published
Respond

Property description

Map