Toggle navigation
Provinces
Noord-Brabant
Zuid-Holland
Noord-Holland
Gelderland
Limburg
Overijssel
Utrecht
Groningen
Friesland
Drenthe
Zeeland
Flevoland
Vlaams Gewest
Cities
Amsterdam
Groningen
Zeist
Hengelo
Tilburg
Den Haag
Breda
Utrecht
Apeldoorn
Den Helder
Delft
Zwolle
Harderwijk
Gorinchem
Alphen aan den Rijn
Home
Home
Social housing listing
Noord-Holland
Den Helder
Marsdiepstraat 549
Rental property Den Helder
Marsdiepstraat 549,
Den Helder
Previous
Next
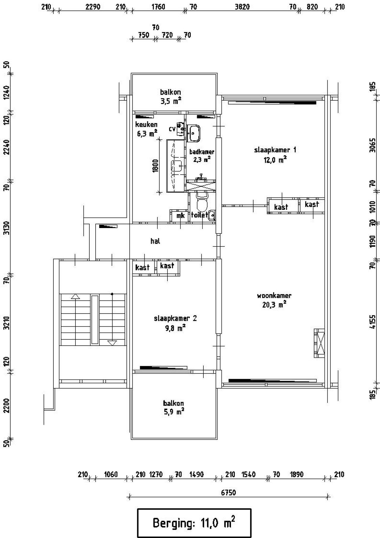
Quick summary
Location
Den Helder
Rental price
€613.07
Property type
Appartement
Area:
62 m
2
Rooms:
3
Beds:
2
Waiting time:
(not set)
Date available:
May 15, 2025
Maximum income:
€39.055.00
Status:
Expired
Property description
Exclusief huurverhoging per 1 juli 2025
Map