Toggle navigation
Provinces
Noord-Brabant
Zuid-Holland
Noord-Holland
Gelderland
Limburg
Overijssel
Utrecht
Groningen
Friesland
Drenthe
Zeeland
Flevoland
Vlaams Gewest
Cities
Amsterdam
Den Haag
Leiden
Zoetermeer
Enschede
Gorinchem
Leeuwarden
Breda
Utrecht
Groningen
Tilburg
Ugchelen
Oosterhout
Hengelo
Roosendaal
Home
Home
Social housing listing
Noord-Holland
Den Helder
Molenplantsoen 74
Rental property Den Helder
Molenplantsoen 74,
Den Helder
Previous
Next
Quick summary
Location
Den Helder
Rental price
€900.07
Property type
Eengezinswoning
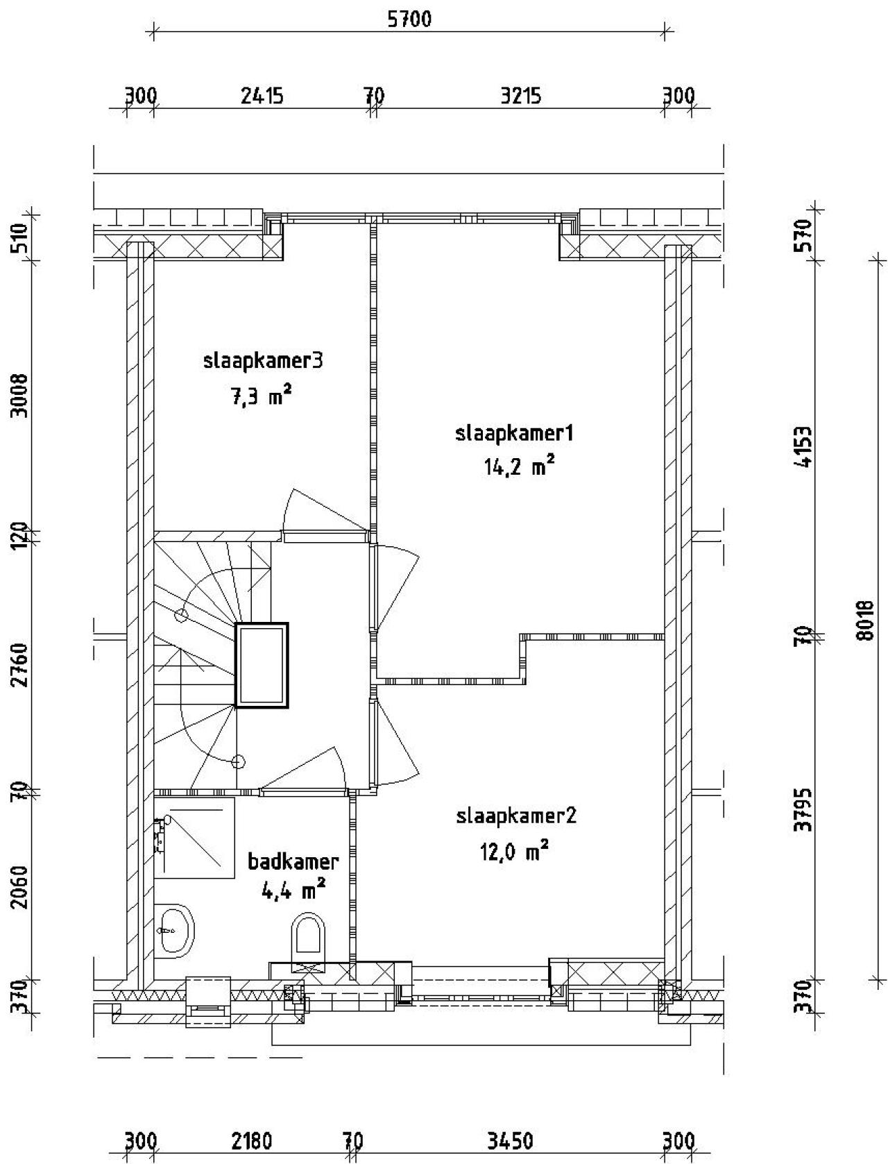
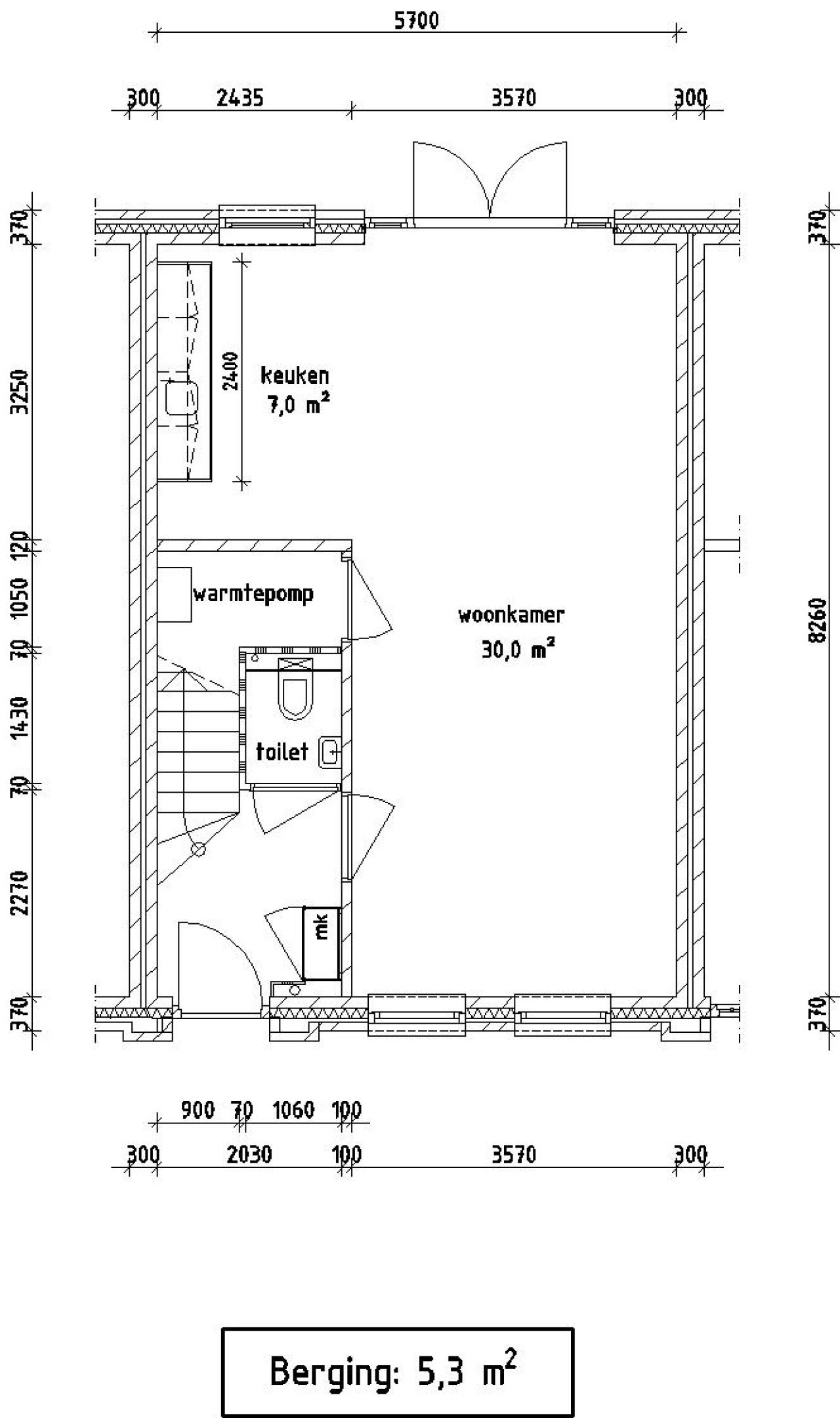
Area:
102 m
2
Rooms:
4
Beds:
3
Waiting time:
(not set)
Date available:
Apr 17, 2025
Maximum income:
(not set)
Status:
Expired
Property description
_Duurzaam woongenot: gasloos, vloerverwarming,__zonnepanelen en een warmtepomp._
Map