Rental property Den Helder

Prunusstraat 18, Den Helder

Quick summary

Location
Den Helder
Rental price
€709.97
Property type
Eengezinswoning
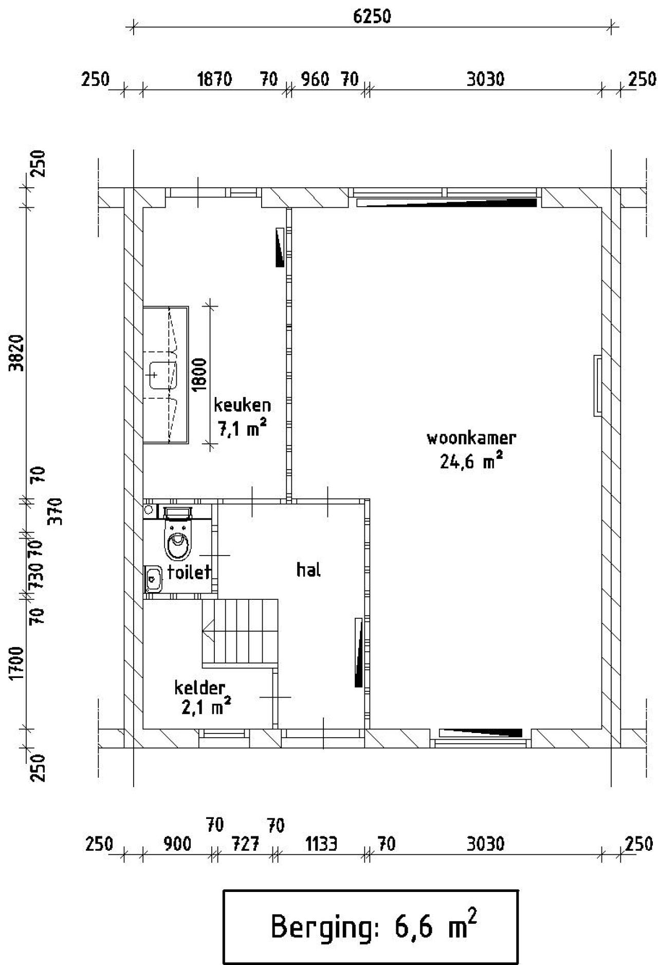
Area:
69 m2
Rooms:
4
Beds:
3
Waiting time:
(not set)
Date available:
Oct 16, 2025
Maximum income:
€39.055.00
Status:
Expired

Property description

Map