Toggle navigation
Provinces
Noord-Brabant
Zuid-Holland
Noord-Holland
Gelderland
Limburg
Overijssel
Utrecht
Groningen
Friesland
Drenthe
Zeeland
Flevoland
Vlaams Gewest
Cities
Amsterdam
Den Haag
Leiden
Leeuwarden
Utrecht
Zoetermeer
Tilburg
Zaandam
Enschede
Roosendaal
Breda
Almere
Alphen aan den Rijn
Dordrecht
Haarlem
Home
Home
Social housing listing
Noord-Holland
Den Helder
Schoenerstraat 58
Rental property Den Helder
Schoenerstraat 58,
Den Helder
Previous
Next
Quick summary
Location
Den Helder
Rental price
€652.77
Property type
Appartement
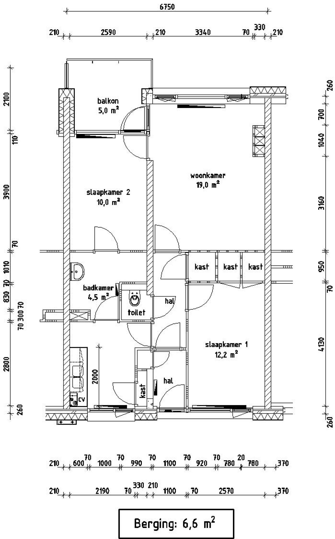
Area:
58 m
2
Rooms:
3
Beds:
2
Waiting time:
(not set)
Date available:
Sep 23, 2025
Maximum income:
€39.055.00
Status:
Expired
Property description
Map