Toggle navigation
Provinces
Noord-Brabant
Zuid-Holland
Noord-Holland
Gelderland
Limburg
Overijssel
Utrecht
Groningen
Friesland
Drenthe
Zeeland
Flevoland
Vlaams Gewest
Cities
Amsterdam
Assen
Den Haag
Groningen
Leeuwarden
Leiden
Breda
Almere
Haarlem
Enkhuizen
Zoetermeer
Utrecht
Enschede
Dordrecht
Delft
Home
Home
Social housing listing
Noord-Holland
Den Helder
Vechtstraat 9
Rental property Den Helder
Vechtstraat 9,
Den Helder
Previous
Next
Quick summary
Location
Den Helder
Rental price
€740.88
Property type
Eengezinswoning
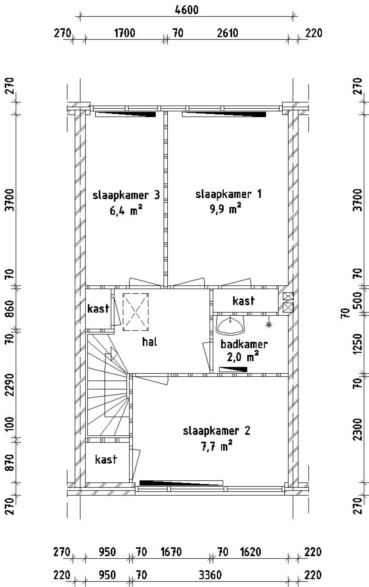
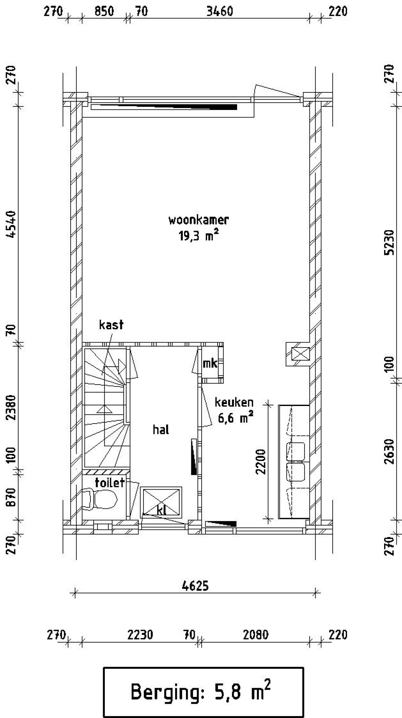
Area:
63 m
2
Rooms:
4
Beds:
3
Waiting time:
(not set)
Date available:
Jan 16, 2026
Maximum income:
(not set)
Status:
Published
Respond
Property description
Map