Rental property Den Helder

Vlamingstraat 76, Den Helder

Quick summary

Location
Den Helder
Rental price
€764.14
Property type
Eengezinswoning
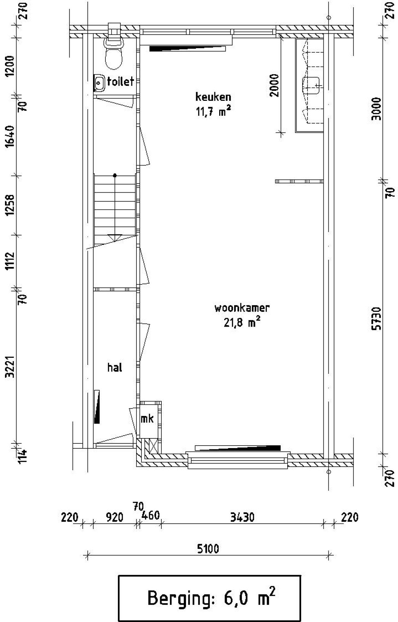
Area:
79 m2
Rooms:
4
Beds:
3
Waiting time:
(not set)
Date available:
Jan 16, 2026
Maximum income:
(not set)
Status:
Published
Respond

Property description

Map