Rental property Haarlem

Allanstraat 59, Haarlem

Quick summary

Location
Haarlem
Rental price
€831.54
Property type
Tussenwoning
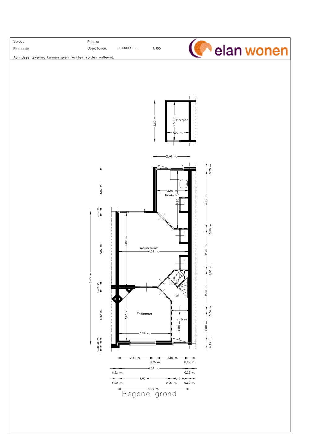
Area:
96 m2
Rooms:
5
Beds:
4
Waiting time:
(not set)
Date available:
Aug 4, 2025
Maximum income:
(not set)
Status:
Expired

Property description

5-kamer eengezinswoning.Woning• achtertuin op het zuidoosten met achterom• berging in de tuin met elektra• gesloten keuken• elektrisch koken• toilet apart van badkamerDe woning heeft een tuin. U bent zelf verantwoordelijk voor het onderhoud. Hiervoor geldt ons groenbeleid. Zie:https://www.elanwonen.nl/groen-in-uw-tuinBezichtigingDe eerste 15 kandidaten worden uitgenodigd voor eenbezichtiging op 15 augustus 2025 om 10.00 uur.De verwachte opleverdatum is 29 augustus 2025.Als u geen uitnodiging heeft ontvangen, dan kunt u niet komen bezichtigen.De bezichtigingsdatum is onder voorbehoud; u krijgt een e-mail als de datum wijzigt.Wij vragen u de documenten pas na de bezichtiging van u en uw eventuele partner via deze link te uploaden:Acceptatieformulier sociale huurwoning. U dient dit de eerstvolgende werkdag na de bezichtiging vóór 12.00 uur te doen. Dit vragen wij aan alle kandidaten die bij de bezichtiging aanwezig waren, ongeacht het rangnummer. Hebben wij geen of niet alle documenten ontvangen, komt uw kandidaatstelling te vervallen.Staat van de woningElan Wonen levert iedere woning op met basiskwaliteit: schoon, heel en veilig.Wat moet u aan de woning doen?Houdt er rekening mee dat u zelf nog het een en ander moet doen om de woning naar uw smaak te maken. Denk hierbij aan het leggen van ondervloeren en vloeren (minimaal 10cha decibel reducerend), schilderen en behangen van de wanden en plafonds.Verzamel alvast uw gegevensKrijgt u een uitnodiging voor bezichtiging en wilt u komen kijken? Verzamel dan alvast uw gegevens. Want als u de woning komt bekijken en daarna laat weten dat u deze wilt huren, moet u uw complete gegevens de volgende werkdag voor 12.00 uur aanleveren.Ook als u niet kandidaat nummer 1 bent, levert u de gevraagde documenten in!Kijk in de voorwaardentekst wat u moet aanleveren.Levert u uw gegevens niet (volledig) op tijd aan? Dan vervalt uw kandidaatstelling.Tot slotDe oplevering van de woning kan afwijken van de advertentietekst, de plattegrond, de foto’s en de bezichtiging in verband met eventuele werkzaamheden.Aan deze advertentie kunt u geen rechten ontlenen.De advertentie is gewijzigd op 01-08-2025 12:33:21.

Map