Rental property Heemskerk

Hallsteinerf 20, Heemskerk

Quick summary

Location
Heemskerk
Rental price
€564.35
Property type
Tussenwoning
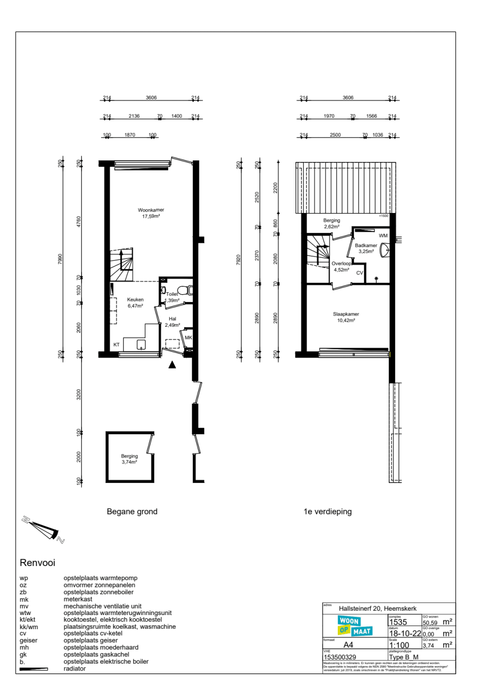
Area:
53 m2
Rooms:
2
Beds:
1
Waiting time:
(not set)
Date available:
May 20, 2025
Maximum income:
€39.055.00
Status:
Expired

Property description

Hierbij bieden wij een 2-kamer begane grond woning aan in HeemskerkDe bezichtiging is ingepland op dinsdag 20 mei 2025 om 16:00 uur!De eerste 10 kandidaten ontvangen hiervoor een uitnodiging!WoningTussenwoning met tuinOpen keukenKoken op gas of elektraToilet met fontein1 slaapkamerBadkamer met douchegedeelte en wastafelDe wasmachine aansluiting zit in de badkamerExterne berging op de begane grondBijzonderhedener is geen achterom via de tuinDuurzaamElektrisch kokenIn de keuken zit een Perilex-aansluiting voor een elektrisch kooktoestel. Dit is een aparte (2-fase) aansluiting.Let op!:Het elektrisch vermogen van uw kooktoestel mag niet groter zijn dan 7,4 kW.Staat van de woningWoonopmaat levert iedere woning op met basiskwaliteit: schoon, heel en veilig.Houdt er rekening mee dat u zelf nog het een en ander moet doen om de woning naar uw smaak te maken. Denk hierbij aan het leggen van vloeren (minimaal 10 decibel reducerend), schilderen en behangen van de wanden en plafond.

Map