Rental property Hilversum

Fuchsiastraat 19, Hilversum

Quick summary

Location
Hilversum
Rental price
€686.52
Property type
Hoekwoning
Area:
53 m2
Rooms:
4
Beds:
3
Waiting time:
(not set)
Date available:
Mar 17, 2025
Maximum income:
€39.055.00
Status:
Expired

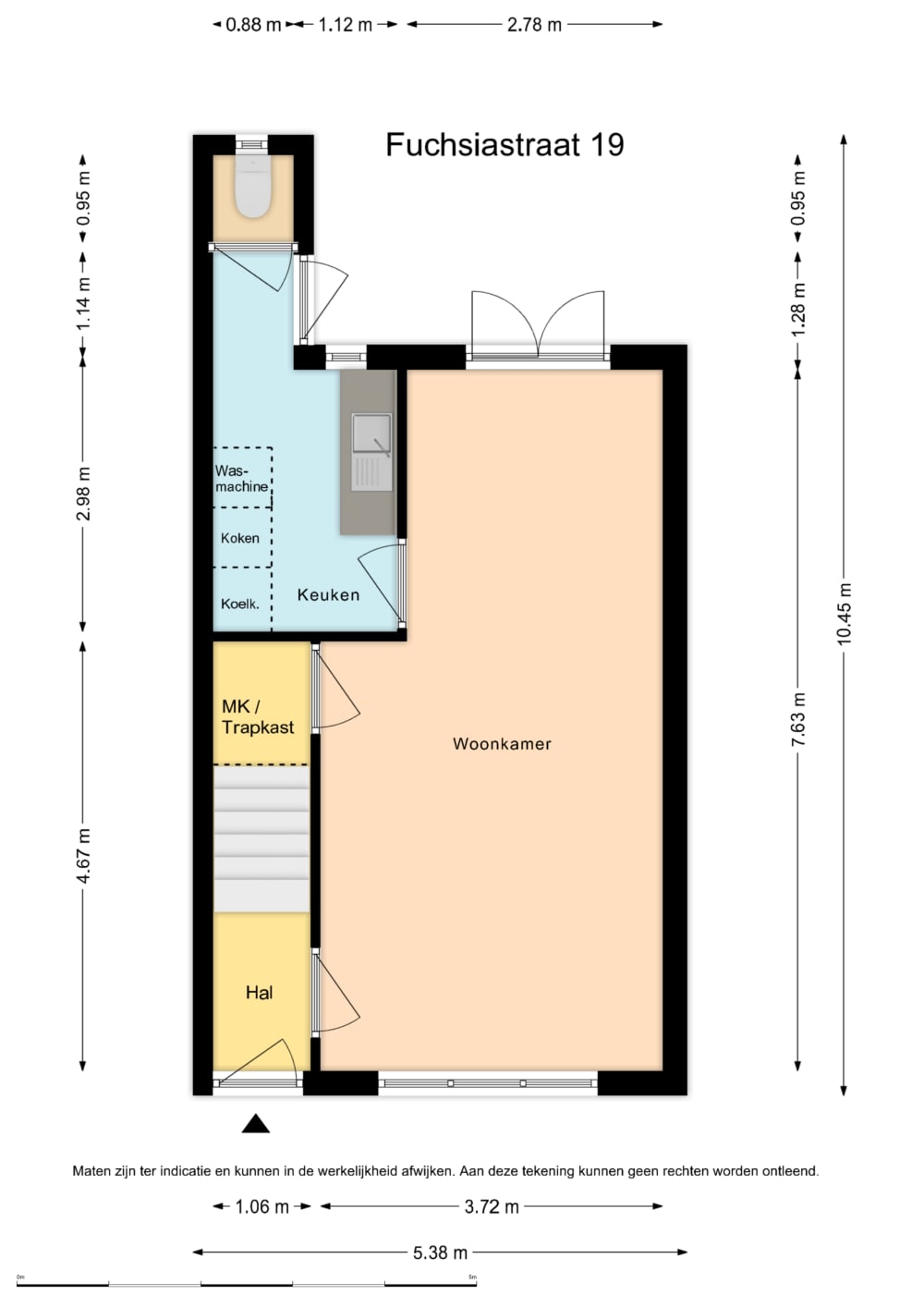
Property description

Charmante, dertiger jaren tussenwoning in de geliefde Bloemenbuurt Hilversum-Zuid. Eén blok achter de Ring Zuid. Paar honderd meter vanaf de gezellige Gijsbrecht van Amstelstraat. Speelpleintje voor de deur. Top plekje in Hilversum-Zuid. Tien minuten fietsen naar het station.De woning is in 2021 verduurzaamd door het aanbrengen van isolatie aan de daken, de muren, de ramen en de kruipruimte. Met een mechanische ventilatie wordt de luchtkwaliteit in de woning automatisch geregeld (het Climarad systeem). Ook is er groot onderhoud uitgevoerd aan de buitenzijde van de woning.Indeling: zie plattegrond.Let op: Voorrang voor gezinnen met minimaal 3 personen, bestaande uit 2 ouders met minimaal 1 minderjarig kind of een 1 oudergezin met minimaal 2 kinderen waarvan 1 kind minderjarig is.

Map