Rental property Hilversum

Lupinestraat 13, Hilversum

Quick summary

Location
Hilversum
Rental price
€735.65
Property type
Tussenwoning
Area:
54 m2
Rooms:
4
Beds:
3
Waiting time:
(not set)
Date available:
Jul 7, 2025
Maximum income:
€39.055.00
Status:
Expired

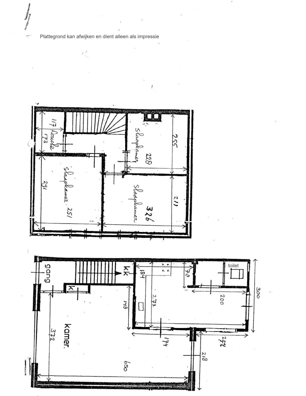
Property description

In de populaire Hilversumse ‘Bloemenbuurt’ gelegen karakteristieke eengezinswoning aan de Lupinestraat. De woning is gelegen op loopafstand van zowel het centrum met een gevarieerd winkel- en horeca-aanbod, als het gezellige winkelgebied van de ‘Gijsbrecht’. Ook voorzieningen zoals scholen, openbaar vervoer en sportfaciliteiten bevinden zich binnen handbereik. De nabijgelegen uitvalswegen zorgen voor uitstekende verbindingen naar Amsterdam en Utrecht, maar ook de NS-treinstations “Hilversum” en “Sportpark” zijn vlakbij.Indeling: entree, hal met trapopgang en trapkast, woonkamer, keuken en halletje na de keuken met apart toilet Bovenverdieping: overloop, twee middelgrote- en een kleine slaapkamers, kleine badkamer onder schuin dak, vlizotrap naar kleine bergvliering (dit is geen slaapruimte).Foto's in deze advertentie zijn van een vergelijkbare woning.De bruto huurprijs is exclusief huuraanpassing van de servicekosten per 1 juli 2025.

Map