Rental property Hilversum

Minckelersstraat 163g, Hilversum

Quick summary

Location
Hilversum
Rental price
€744.22
Property type
Appartement
Area:
46 m2
Rooms:
2
Beds:
1
Waiting time:
(not set)
Date available:
Jan 30, 2026
Maximum income:
(not set)
Status:
Published
Respond

Property description

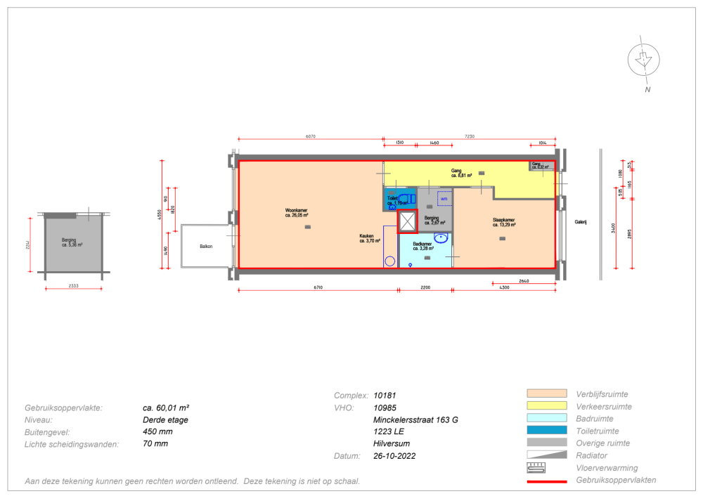
Om de hoek bij de nieuwe wijk Anna’s Hoeve, op een steenworp afstand van de prachtige Gooise natuur én op fietsafstand van winkelcentrum Seinhorst en het gezellige centrum van Hilversum hebben wij dit appartement beschikbaar.Het appartement is geschikt voor maximaal 2 personen. Zie ook plattegrondtekening.Ligging:Dit 2-kamerappartement bevindt zich op de 3e verdieping van het woongebouw op de hoek van de Anthony Fokkerweg en de Minckelersstraat in Hilversum-Oost. Vanuit deze locatie ben je binnen no time op de Hilversumse heide. Op de fiets bereik je binnen vijf minuten winkelcentrum Seinhorst. Met een supermarkt, bakker, slager, drogist, apotheek, slijterij en bloemist kun je daar goed terecht voor je dagelijkse boodschappen. Het gezellige centrum van Hilversum en het centraal station liggen op ongeveer 10 minuten fietsen.Indeling: hal, slaapkamer met toegang tot de badkamer met douche en wastafel, berging, toilet, woonkamer met open keuken en balkon.

Map