Rental property Hilversum

Planetenstraat 61, Hilversum

Quick summary

Location
Hilversum
Rental price
€730.43
Property type
Benedenwoning
Area:
32 m2
Rooms:
2
Beds:
1
Waiting time:
(not set)
Date available:
Feb 17, 2026
Maximum income:
€39.055.00
Status:
Published
Respond

Property description

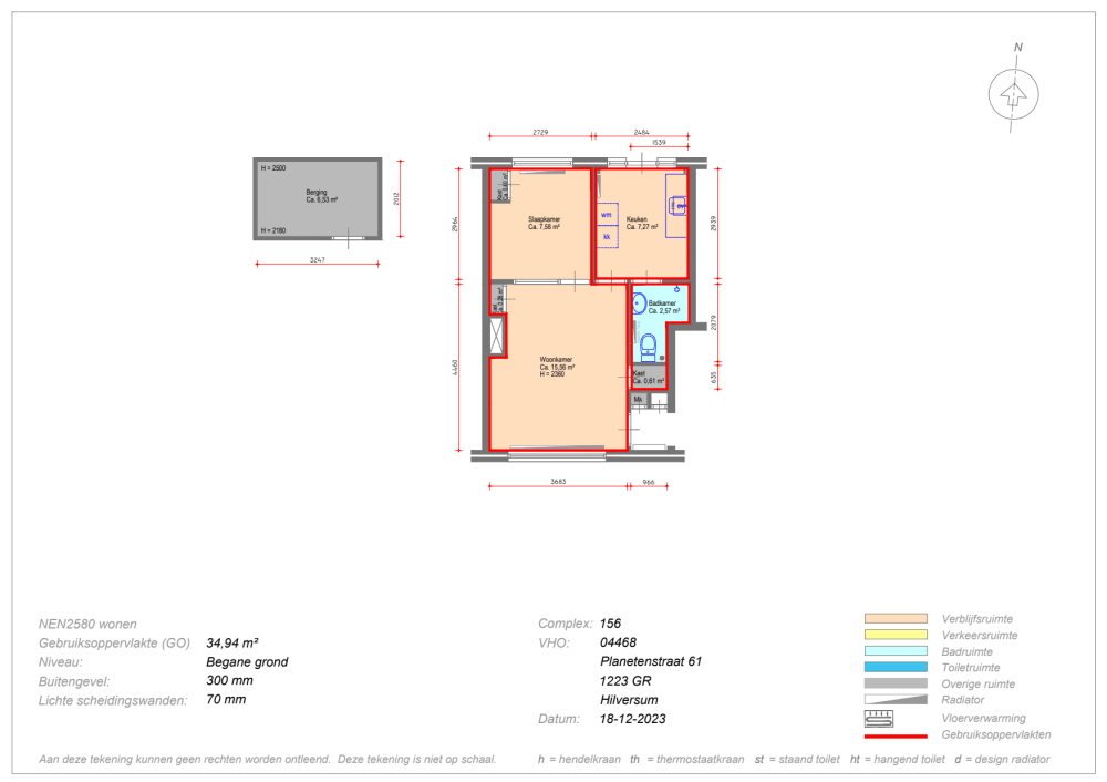
Planetenstraat 61 is een knusse 1-persoons benedenwoning in een gezellige buurt. Winkelcentrum Seinhorst is op enkele minuten fietsen bereikbaar.IndelingEen woonkamer van 15 m2, slaapkamer van 8 m2. Badkamer met douche, wastafel en toilet. Dichte keuken met een achterdeur naar het terras. Er kan gekookt worden middels een gasaansluiting. De woning heeft ook een schuurtje als berging in het achterpad.BijzonderhedenU hoort elkaar goed in deze woningen. Om het leefklimaat van alle bewoners prettig te houden zijn wij op zoek naar een rustige huurder. Personen met kinderen plaatsen wij daarom niet.Een intakegesprek met een medewerker van Dudok Wonen is verplicht voor het definitief kunnen toewijzen van deze woning.

Map