Rental property Hilversum

Van Linschotenlaan 299, Hilversum

Quick summary

Location
Hilversum
Rental price
€757.09
Property type
Appartement
Area:
58 m2
Rooms:
2
Beds:
1
Waiting time:
(not set)
Date available:
Feb 13, 2026
Maximum income:
(not set)
Status:
Published
Respond

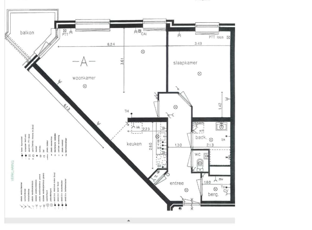
Property description

Dit senioren appartement aan de Van Linschotenlaan ligt vlakbij het ziekenhuis Tergooi. Daardoor is het makkelijk te bereiken met de auto en met het openbaar vervoer (dichtbij een bushalte en treinstation Hilversum Sportpark). In de omgeving zijn veel mooie fiets- en wandelroutes waar je van kunt genieten van de natuur. Landgoed Monnikenberg ligt bijvoorbeeld om de hoek.Op loopafstand van Ter Gooi ziekenhuis en verschillende winkels (Riebeeckgalerij) voor de dagelijkse boodschappen. Op de fiets ben je binnen 10 minuten in het bruisende centrum van Hilversum.Indeling: zie plattegrond en het appartement heeft een berging in de onderbouw.Bij de gelabelde seniorenwoningen geven wij geen toestemming voor bewoning met inwonende kinderen.

Map