Rental property Hilversum

Zuiderweg 1C, Hilversum

Quick summary

Location
Hilversum
Rental price
€724.22
Property type
Benedenwoning
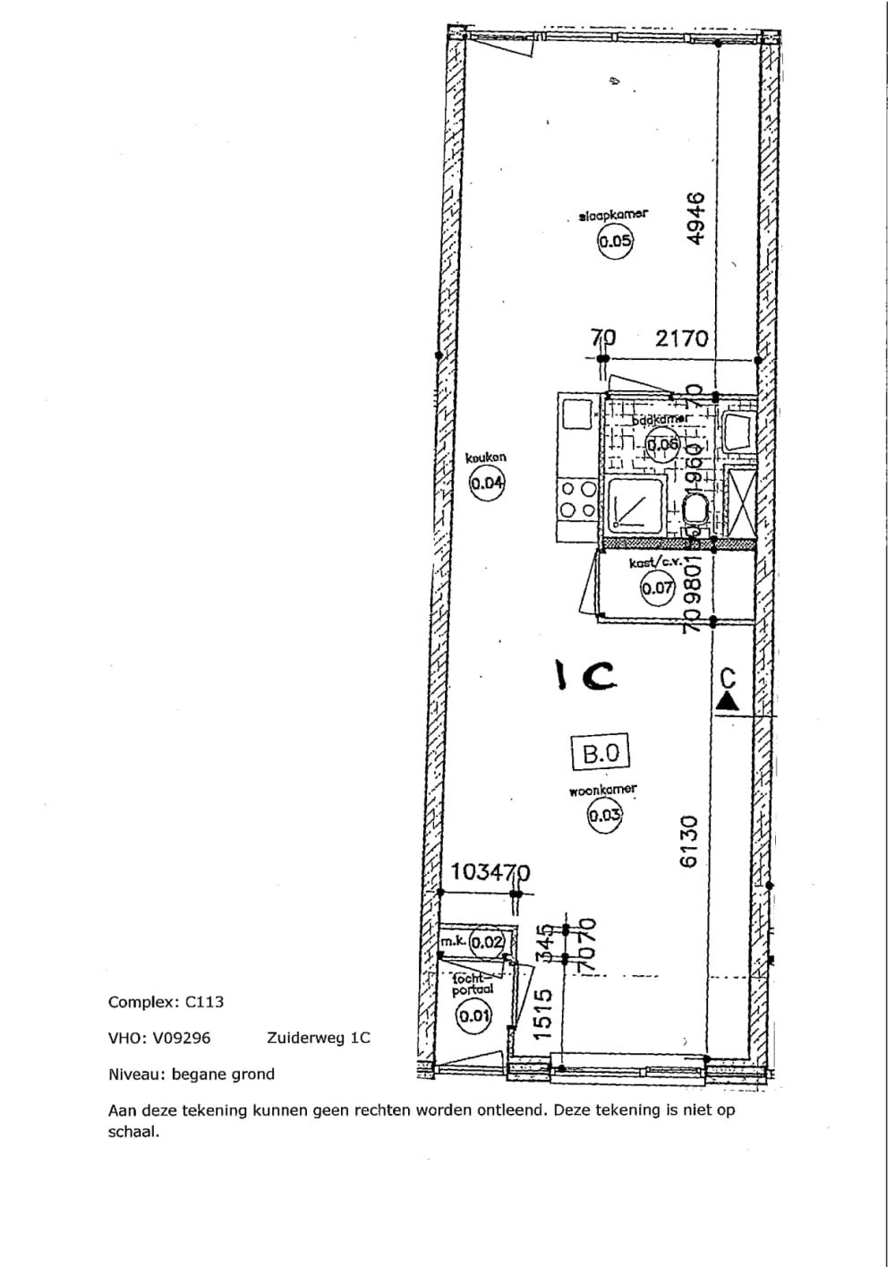
Area:
55 m2
Rooms:
1
Beds:
0
Waiting time:
(not set)
Date available:
Mar 23, 2026
Maximum income:
€39.055.00
Status:
Published
Respond

Property description

Op steenworp afstand gelegen van het Centraal Station en het centrum ligt deze studio. Bij de woning hoort een eigen parkeerplaats aan de achterzijde van het gebouw. De woning heeft een separate schuur. De vertrekkende huurder heeft een wand geplaatst waardoor er nu een separate slaapkamer is. Deze wand en de mooie vloer en ondervloer in de woning zijn ter overname. De woning is geschikt voor maximaal 2 volwassen personen.VoorwaardenUw belastbaar huishoudinkomen mag bij een eenpersoonshuishouden maximaal € 51.537 per jaar zijn en bij een meerpersoonshuishouden maximaal € 56.910 (prijspeil 2026). Om dit te controleren vragen wij bij toewijzing van een woning een recente inkomensverklaring (een inkomensverklaring van het jaar 2024) van u en uw medebewoners (niet van inwonende kinderen). Uw huishoudinkomen wordt op basis van de inkomensverklaring(en) na indexering vastgesteld.Deze woning wordt toegewezen volgens de wettelijke regels voor passend toewijzen. Zonder inkomensverklaring(en) kan Dudok Wonen de woning niet toewijzen. Dudok Wonen gaat in dat geval verder met de volgende kandidaat. Zorg er daarom voor dat u deze op tijd in huis hebt.Een inkomensverklaring is gratis. U kunt een exemplaar downloaden via de websitewww.belastingdienst.nldoor in te loggen met uw DigiD op het onderdeel Mijn Belastingdienst. Dudok Wonen accepteert alleen het originele digitale bestand en dus geen prints, schermprints of foto’s van het digitale bestand.

Map