Rental property Hoofddorp

Rondenburglaan 140, Hoofddorp

Quick summary

Location
Hoofddorp
Rental price
€882.44
Property type
Appartement
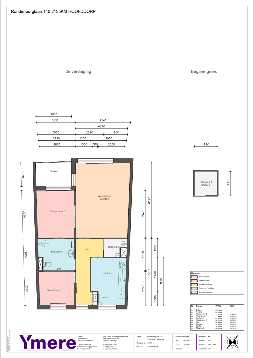
Area:
65 m2
Rooms:
3
Beds:
2
Waiting time:
(not set)
Date available:
Aug 11, 2025
Maximum income:
(not set)
Status:
Expired

Property description

Driekamer galerijflat op de tweede etage voor senioren 55+ jaar in HoofddorpWoningGalerijflatWoonkamer met gesloten keukenBadkamer en toilet samenWasmachine-aansluiting in de bergingWel bovenburenBalkonHoudt rekening met leef- en contactgeluiden omwonendenBergingGeschikt voor minimaal 1 persoonBijzonderhedenSeniorenwoning 55+ jaarInwonende kinderen niet toegestaanWoning verhuurbaar per is onder voorbehoudVerhoogd toilet aanwezigStaat van de woningYmere levert iedere woning op met basiskwaliteit: schoon, heel en veilig.Wat moet u aan de woning doen?Houdt er rekening mee dat u zelf nog het een en ander moet doen om de woning naar uw smaak te maken. Denk hierbij aan het leggen van ondervloeren en vloeren (minimaal 10cha decibel reducerend), schilderen en behangen van de wanden en plafondsOvernameDe vertrekkende bewoner biedt ter overname aan:Laminaatvloer (in de keuken licht beschadigd)RaamdecoratieBadkamermeubel en gasfornuis blijven kosteloos achter in de woningOp de overnames kunnen geen rechten worden ontleend. Bij defect worden ze voor de oplevering door Ymere verwijdert. Bij eventuele toekomstige gebreken zijn de kosten voor de huurder zelf. Bij ondertekening van de huurovereenkomst bent u automatisch eigenaar. Ymere voert hier geen werkzaamheden aan uit.Alle overnames en zelf aangebrachte voorzieningen neemt u over. Ymere is hier niet verantwoordelijk voor. Eventuele kosten bij gebreken hieraan zijn voor uzelf of Ymere plaatst standaardproducten ervoor in de plaats.In de buurtOVScholenWinkelsSupermarktGeen horecaParkenUitvalswegenGratis parkerenVerzamel alvast uw gegevensKrijgt u een uitnodiging om deze woning te bekijken en wilt u komen kijken? Verzamel dan alvast uw gegevens voor Ymere. Want als u de woning komt bekijken en daarna laat weten dat u deze wilt huren, moet u uw gegevens de volgende werkdag voor 12.00 uur aanleveren. Ook als u niet kandidaat nummer 1 bent levert u de gevraagde documenten in!  Kijk op onzewebsiteof in dezefolderwat u moet aanleveren. Levert u uw gegevens niet op tijd aan? Dan krijgt u geen aanbod. U kunt de woning dan niet meer huren.BezichtigingKandidatennummer 1 t/m 10 worden uitgenodigd voor een bezichtiging op 7 augustus 2025. Als u geen uitnodiging heeft dan kan u niet komen bezichtigen. Deze datum is onder voorbehoud u krijgt een notificatie per mail als de datum wijzigt.Tot slotDe oplevering van de woning kan afwijken van de advertentietekst, de plattegrond, de foto’s en de bezichtiging in verband met eventuele werkzaamheden.Aan deze advertentie kunt u geen rechten ontlenen

Map