Rental property Huizen

Bovenmaatweg 236, Huizen

Quick summary

Location
Huizen
Rental price
€730.99
Property type
Portiekwoning
Area:
52 m2
Rooms:
3
Beds:
2
Waiting time:
(not set)
Date available:
Jan 8, 2026
Maximum income:
€39.055.00
Status:
Published
Respond

Property description

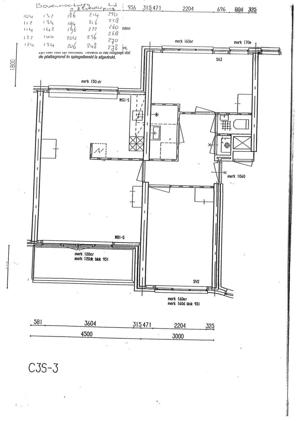
Huizen, een voormalig vissersdorp aan het Gooimeer, combineert historische charme met moderne voorzieningen. Gelegen in het Gooi, biedt het dorp een sfeervolle woonomgeving met een rijk verenigingsleven, natuur en uitstekende voorzieningen. Huizen heeft een breed winkelaanbod, verdeeld over meerdere winkelcentra zoals Oostermeent, Het Holleblok en Hart van Huizen. Hier vindt u zowel grote ketens als lokale speciaalzaken.Het dorp kent diverse gezellige restaurants, cafés en terrassen, vooral rondom de Oude Haven en in het dorpscentrum. Het Gooimeer en het nabijgelegen Goois Natuurreservaat bieden volop mogelijkheden voor watersport, wandelen en fietsen. Daarnaast heeft Huizen een eigen jachthaven en diverse sportverenigingen.3-kamer appartement op de 2e etage zonder lift.Appartement is gelegen op loopafstand van het winkelcentrum Oostermeent en het openbaar vervoer. Het Gooimeer, bos en heide zijn prima te bereiken met de fiets. Diverse snelwegen binnen vijf minuten met de auto te bereiken.In de omgeving is voldoende openbare parkeergelegenheid.Voor impressie indeling zie plattegrond.

Map