Rental property Huizen

Godelinde 9, Huizen

Quick summary

Location
Huizen
Rental price
€935.16
Property type
Appartement
Area:
73 m2
Rooms:
3
Beds:
2
Waiting time:
(not set)
Date available:
Sep 22, 2025
Maximum income:
(not set)
Status:
Expired

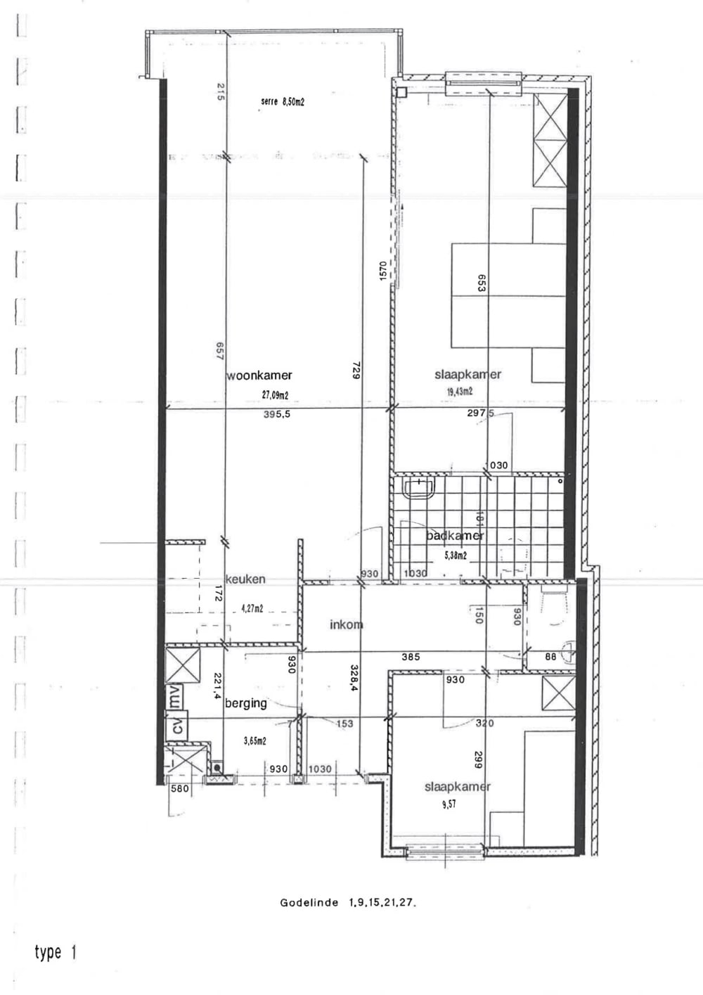
Property description

Een complete seniorenwoning aan een rustige straat op loopafstand van het " Oude Dorp" van Huizen, centraal gelegen en in de nabijheid van winkels, scholen, sportfaciliteiten, openbaar vervoer en uitvalswegen. De appartementen bevinden zich in een woonomgeving met veel groen. Er is voldoende parkeergelegenheid.Woonkamer met een gedeeltelijk open keuken. De ruime hoofdslaapkamer is voorzien van een grote schuifwand zodat deze gemakkelijk met rolstoel te betreden is, en desgewenst zelfs opengelaten kan worden. Dit appartement op de eerste verdieping heeft een serre waarvan de ramen voor een groot deel kunnen worden opengezet.Indeling: zie plattegrond. De foto's  zijn van een vergelijkbaar appartement, hieraan kunnen geen rechten worden ontleend.Op de begane grond kan er gebruik gemaakt worden van een gemeenschappelijke fietsenberging.De appartementen voldoen aan de norm vanaanpasbaar wonen, en zijn daardoor levensloopbestendig rolstoelgeschikt.Heeft u of gaat u gebruik maken van een scootmobiel? Geef dit aan tijdens de bezichtiging! Houd er rekening mee dat u binnen het gebouw geen gebruik van uw scootmobiel mag maken (wel uw rolstoel). Uw scootmobiel mag alleen in een daarvoor bestemde ruimte geparkeerd worden. De plekken zijn erg beperkt, is er (tijdelijk) geen plaats in de interne scootmobiel stalling dan zoekt u zelf een mogelijkheid voor buitenstalling in overleg met uw WMO consulent.

Map