Toggle navigation
Provinces
Noord-Brabant
Zuid-Holland
Noord-Holland
Gelderland
Limburg
Overijssel
Utrecht
Groningen
Friesland
Drenthe
Zeeland
Flevoland
Vlaams Gewest
Cities
Amsterdam
Den Haag
Leiden
Leeuwarden
Utrecht
Zoetermeer
Tilburg
Zaandam
Enschede
Roosendaal
Breda
Almere
Alphen aan den Rijn
Dordrecht
Haarlem
Home
Home
Social housing listing
Noord-Holland
Huizen
Oranje Nassauplein 27
Rental property Huizen
Oranje Nassauplein 27,
Huizen
Previous
Next
Quick summary
Location
Huizen
Rental price
€715.00
Property type
Benedenwoning
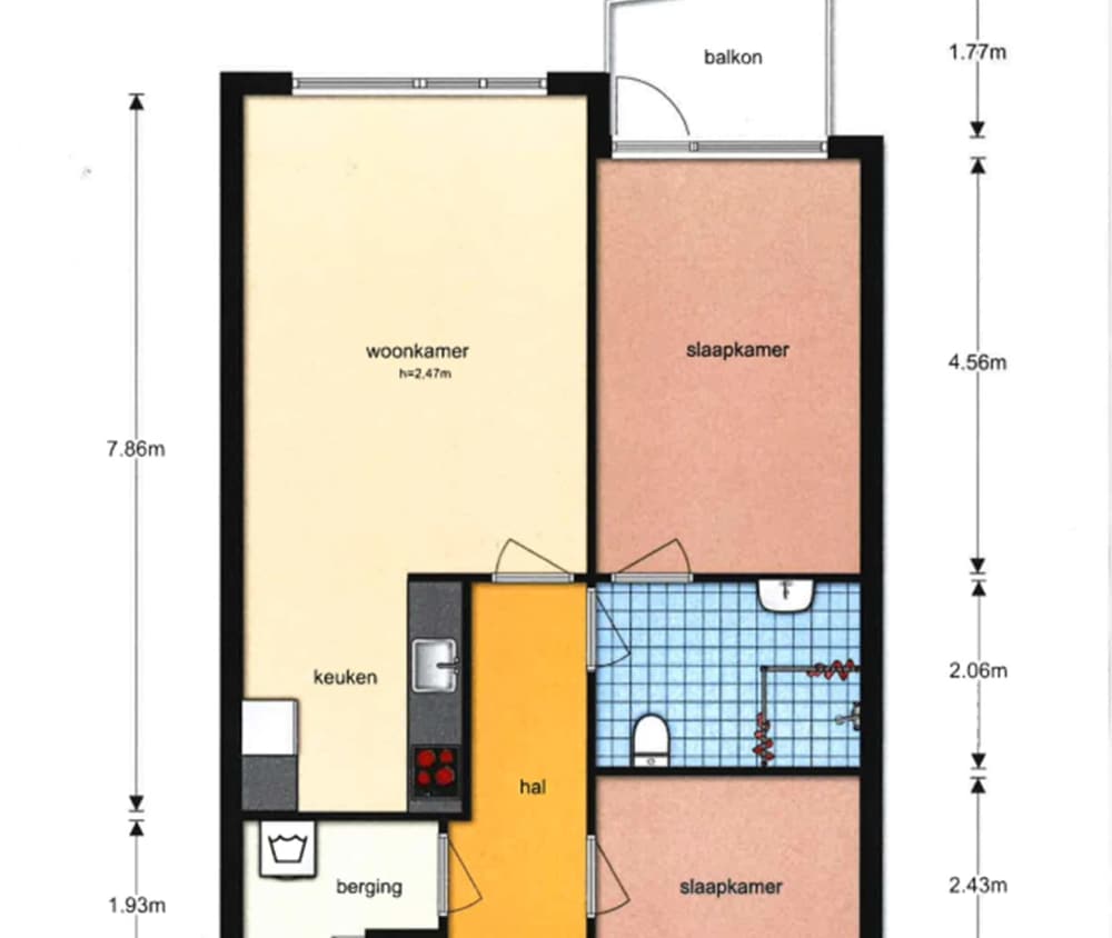
Area:
68 m
2
Rooms:
3
Beds:
2
Waiting time:
(not set)
Date available:
Feb 20, 2025
Maximum income:
€39.055.00
Status:
Expired
Property description
Kandidaten met zorg hebben voorrang.
Map