Rental property Huizen

Punter 4, Huizen

Quick summary

Location
Huizen
Rental price
€750.09
Property type
Tussenwoning
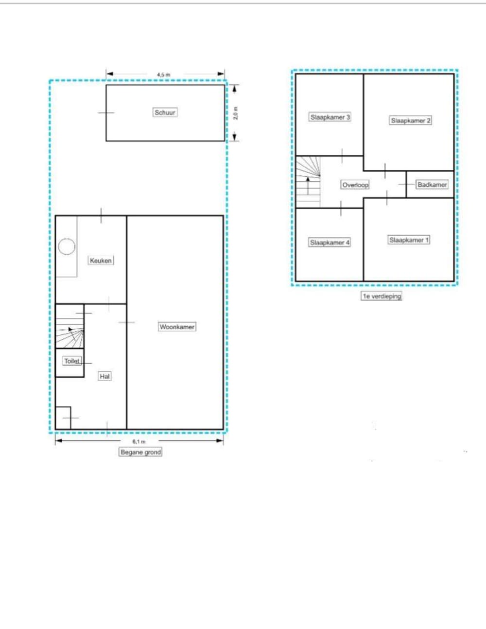
Area:
70 m2
Rooms:
5
Beds:
4
Waiting time:
(not set)
Date available:
Jan 14, 2025
Maximum income:
(not set)
Status:
Expired

Property description

Deze fijne eengezinswoning vind je in het gezellige en kindvriendelijke deel van de woonwijk Stad en Lande. Op steenworp afstand bevindt zich het groene Stadspark van Huizen, met een tennisbaan, basketbalveld, kinderboerderij en mooie wandelroutes. De bushalte bevindt zich op enkele minuten lopen van de woning. Ook bent u binnen enkele autominuten op de snelweg A27 en A1.Indeling: zie plattegrond.

Map