Rental property Huizen

Vrouwenzand 26, Huizen

Quick summary

Location
Huizen
Rental price
€923.23
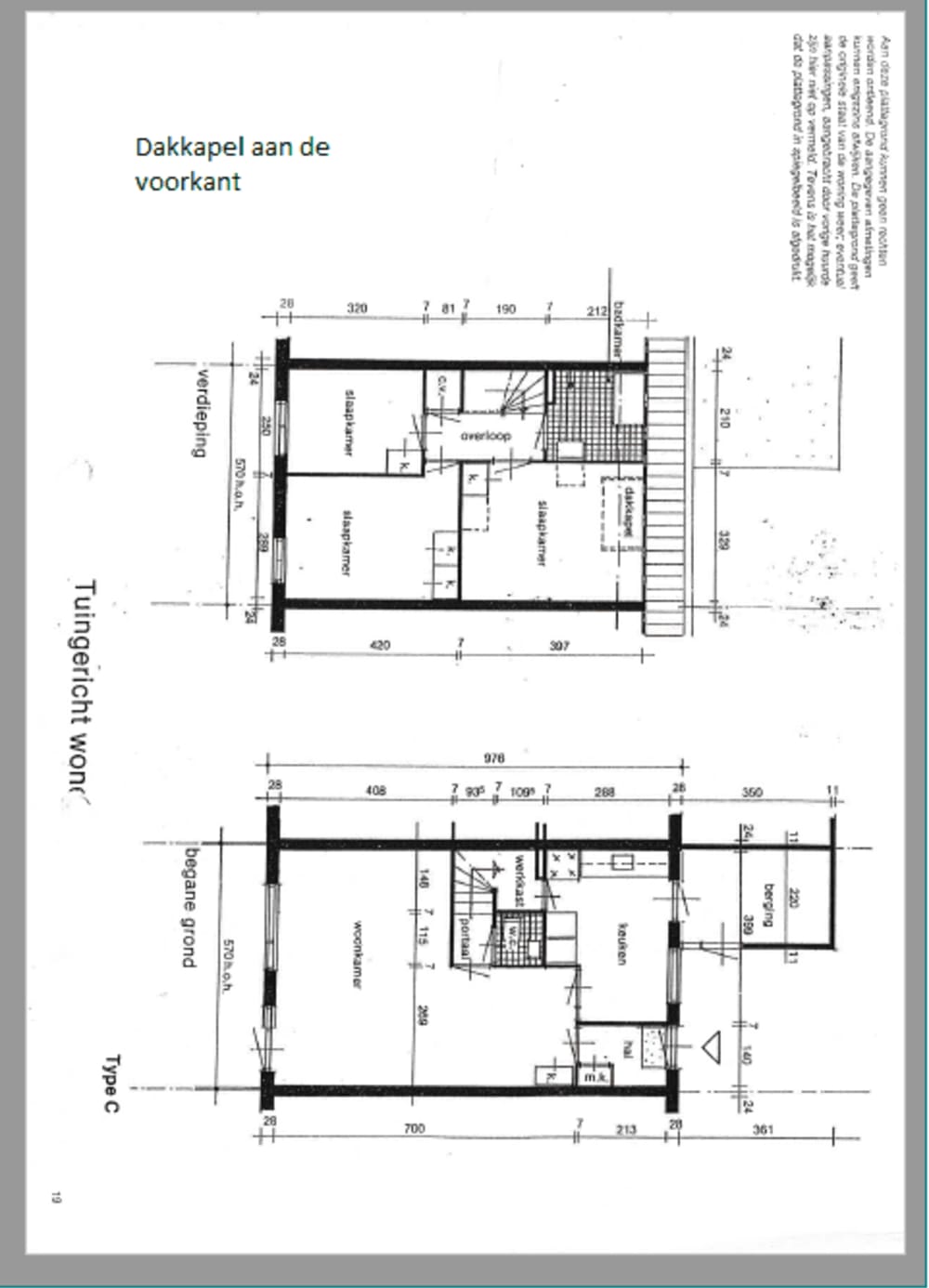
Property type
Hoekwoning
Area:
76 m2
Rooms:
4
Beds:
3
Waiting time:
(not set)
Date available:
Jun 23, 2025
Maximum income:
(not set)
Status:
Expired

Property description

Deze charmante eengezinswoning ligt op loopafstand van het Gooimeer en het Gooierdijkpark.In de omgeving bevinden zich winkels en basisscholen en op 6-8 minuten rijden zijn er diverse restaurantjes te vinden. De A1 en de A27 zijn vanaf de Vrouwenzand snel bereikbaar. Op loopafstand is er een speeltuin.Ruime hoekwoning in Huizen met drie slaapkamers en een tuin op het zuidwesten.Indeling: Begane grond: Entree, hal, toilet, L vormige woonkamer met toegang naar achtertuin, keuken met ruime voorraadkast, berging met ingang vanuit de voortuin en ingang vanuit de keuken.Verdieping: 3 slaapkamers, badkamer met douche, wastafel en wasmachine aansluiting.De huur is exclusief huuraanpassing van de servicekosten per 1 juli 2025.

Map