Rental property Huizen

Westkade 144, Huizen

Quick summary

Location
Huizen
Rental price
€770.59
Property type
Appartement
Area:
54 m2
Rooms:
3
Beds:
2
Waiting time:
(not set)
Date available:
Mar 10, 2026
Maximum income:
(not set)
Status:
Published
Respond

Property description

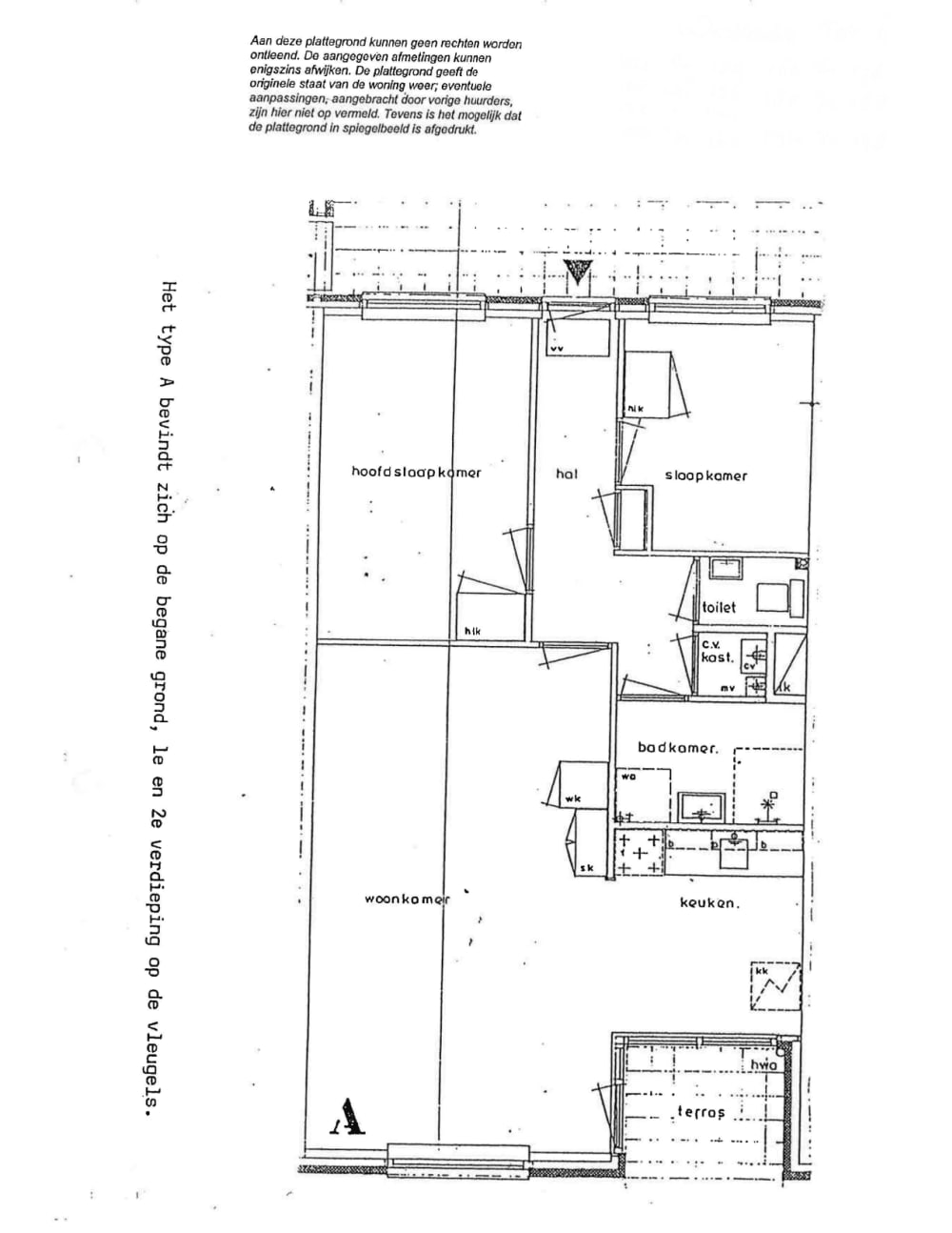
Dit senioren appartement is gunstig gelegen dichtbij winkelcentrum Oostermeent, openbaar vervoer en de uitvalswegen.De omgeving is groen, veelzijdig en prettig om in te wonen. Op loopafstand ligt winkelcentrum Oostermeent met een breed aanbod aan winkels en supermarkten, ideaal voor de dagelijkse boodschappen. Liefhebbers van natuur en buiten zijn hier helemaal op hun plek: de Gooische heide, parken en bossen liggen dichtbij en nodigen uit tot wandelen, fietsen en ontspannen. Ook het gezellige Oude Dorp van Huizen met diverse horecagelegenheden is snel bereikbaar. Sportievelingen kunnen hun hart ophalen met een ruim aanbod aan sportfaciliteiten in de buurt.Voldoende openbare parkeergelegenheid voor de deur.Indeling: zie impressie plattegrond.Bij de gelabeldesenioren woningengeven wij geen toestemming voor bewoning met inwonende kinderen.

Map