Rental property Huizen

Westkade 176, Huizen

Quick summary

Location
Huizen
Rental price
€770.59
Property type
Appartement
Area:
54 m2
Rooms:
3
Beds:
2
Waiting time:
(not set)
Date available:
Jan 23, 2026
Maximum income:
(not set)
Status:
Published
Respond

Property description

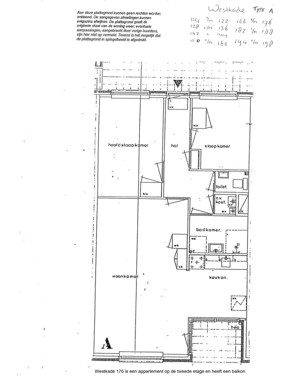
Compact appartement in een groene, veelzijdige en prettige woonomgeving. Op loopafstand ligt winkelcentrum Oostermeent met een breed aanbod aan winkels en supermarkten zoals Albert Heijn en Plus, ideaal voor de dagelijkse boodschappen. Liefhebbers van natuur en buiten zijn hier helemaal op hun plek: de Gooische heide, parken en bossen liggen dichtbij en nodigen uit tot wandelen, fietsen en ontspannen. Ook het gezellige Oude Dorp van Huizen met diverse horecagelegenheden is snel bereikbaar. Sportievelingen kunnen hun hart ophalen met een ruim aanbod aan sportfaciliteiten in de buurt, zoals tennis, hockey, voetbal, padel, kartbanen, sportscholen en zelfs wintersport bij Wolfskamer. Daarnaast bevinden zowel basisscholen als middelbare scholen zich op loopafstand, wat de locatie extra aantrekkelijk maakt.Indeling: zie plattegrond.

Map