Rental property IJmuiden

Grahamstraat 86, IJmuiden

Quick summary

Location
IJmuiden
Rental price
€743.20
Property type
Portiekwoning
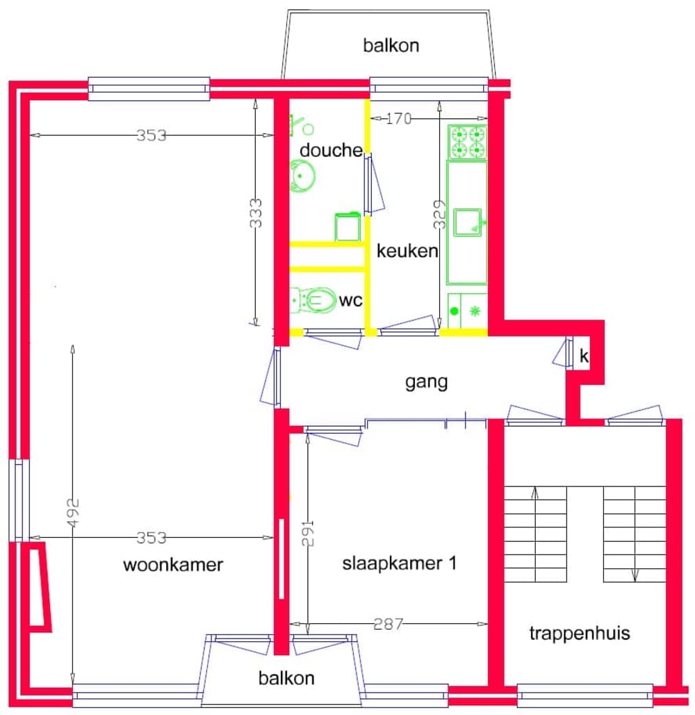
Area:
47 m2
Rooms:
3
Beds:
2
Waiting time:
(not set)
Date available:
Aug 16, 2025
Maximum income:
(not set)
Status:
Expired

Property description

Woning2-kamerwoning1 slaapkamerPortiekflatGesloten keukenStandaard keukenblok 180cmKoken op gasCV-ketelNatuurlijke ventilatieWasmachine aansluiting in de badkamerAparte toiletruimteDubbel glas & enkel glasExterne bergingIn de buurtOpenbaar vervoer op loopafstandWinkelsSupermarktBezichtigingDe eerste 10 kandidaten ontvangen een uitnodiging voor de groepsbezichtiging.De groepsbezichtiging vindt plaats op woensdag 15 oktober om 11:00 uur.Aangeboden overnamesEr zijn geen overnames. De woning wordt kaal opgeleverd.

Map