Rental property IJmuiden

Van Ostadestraat 49, IJmuiden

Quick summary

Location
IJmuiden
Rental price
€790.81
Property type
Portiekwoning
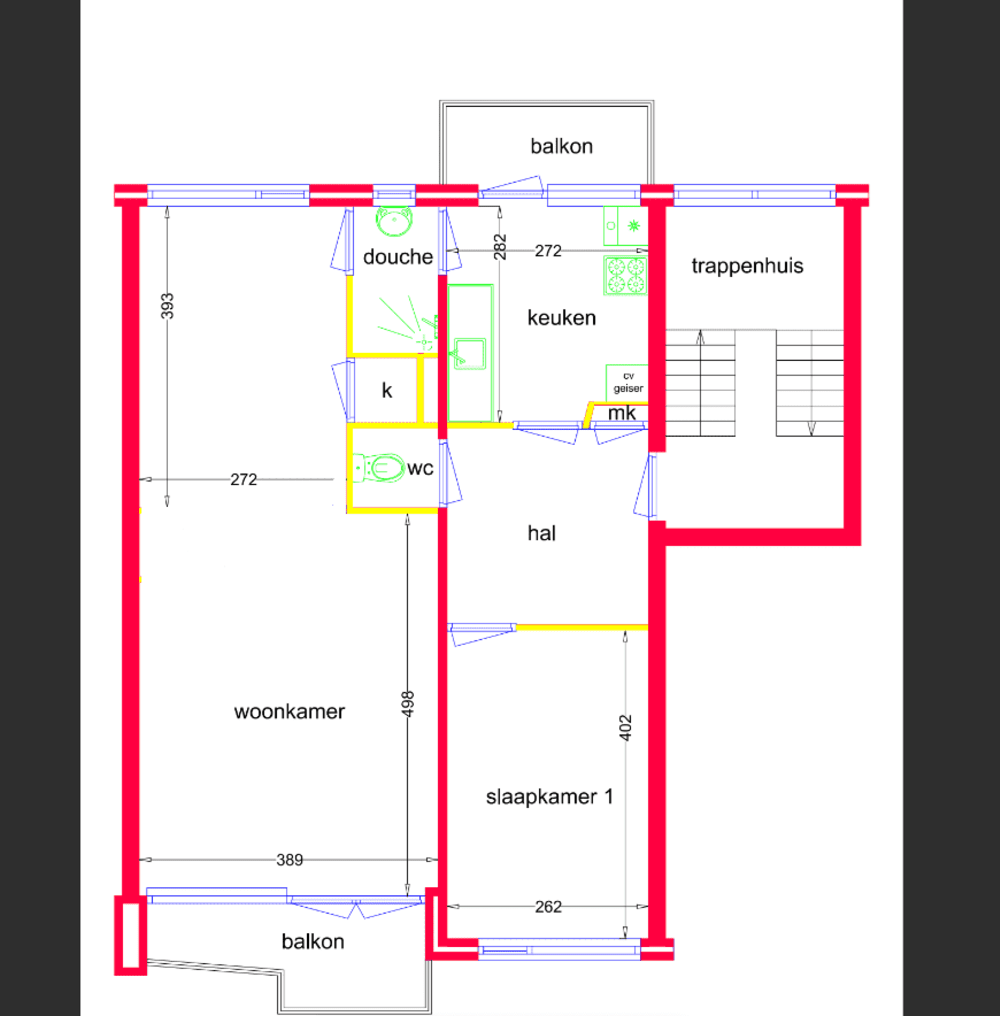
Area:
50 m2
Rooms:
2
Beds:
1
Waiting time:
(not set)
Date available:
Mar 1, 2025
Maximum income:
(not set)
Status:
Expired

Property description

Let op, belangrijk!In sommige gevallen kan er op de huurprijs een korting worden toegepast. Uw inkomen bepaalt of de woning met korting wordt verhuurd of niet. Zorg ervoor dat uw inkomensgegevens (verzamelinkomen Belastingdienst) juist in het systeem staan dan ziet u na het inloggen de huurprijs op basis van uw inkomen. Aan deze huurprijs kunnen geen rechten worden ontleend.Woning2 kamerwoning1 slaapkamerPortiekflatGesloten keukenStandaard keukenblok 180cmKoken op gasCV-ketelNatuurlijke ventilatieWasmachine aansluiting in de keukenAparte toiletruimteDubbel glasExterne bergingIn de buurtOpenbaar vervoer op loopafstandWinkelsSupermarktBezichtigingDe eerste 10 kandidaten ontvangen een uitnodiging voor de groepsbezichtiging.Aangeboden overnames/  ZAVEr zijn geen overnames. De woning wordt kaal opgeleverd.

Map