Rental property Julianadorp

Middelzand 5402, Julianadorp

Quick summary

Location
Julianadorp
Rental price
€903.51
Property type
Eengezinswoning
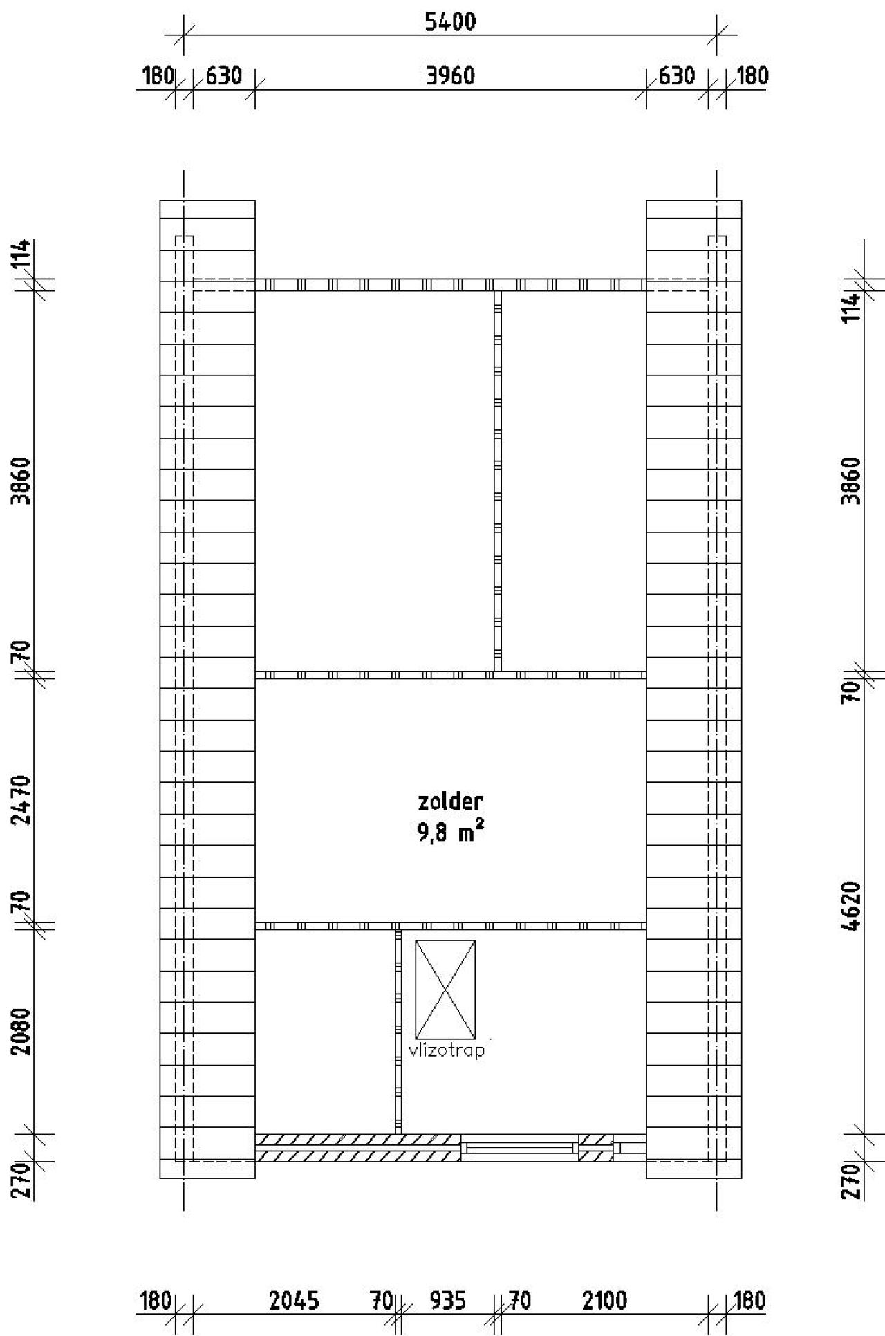
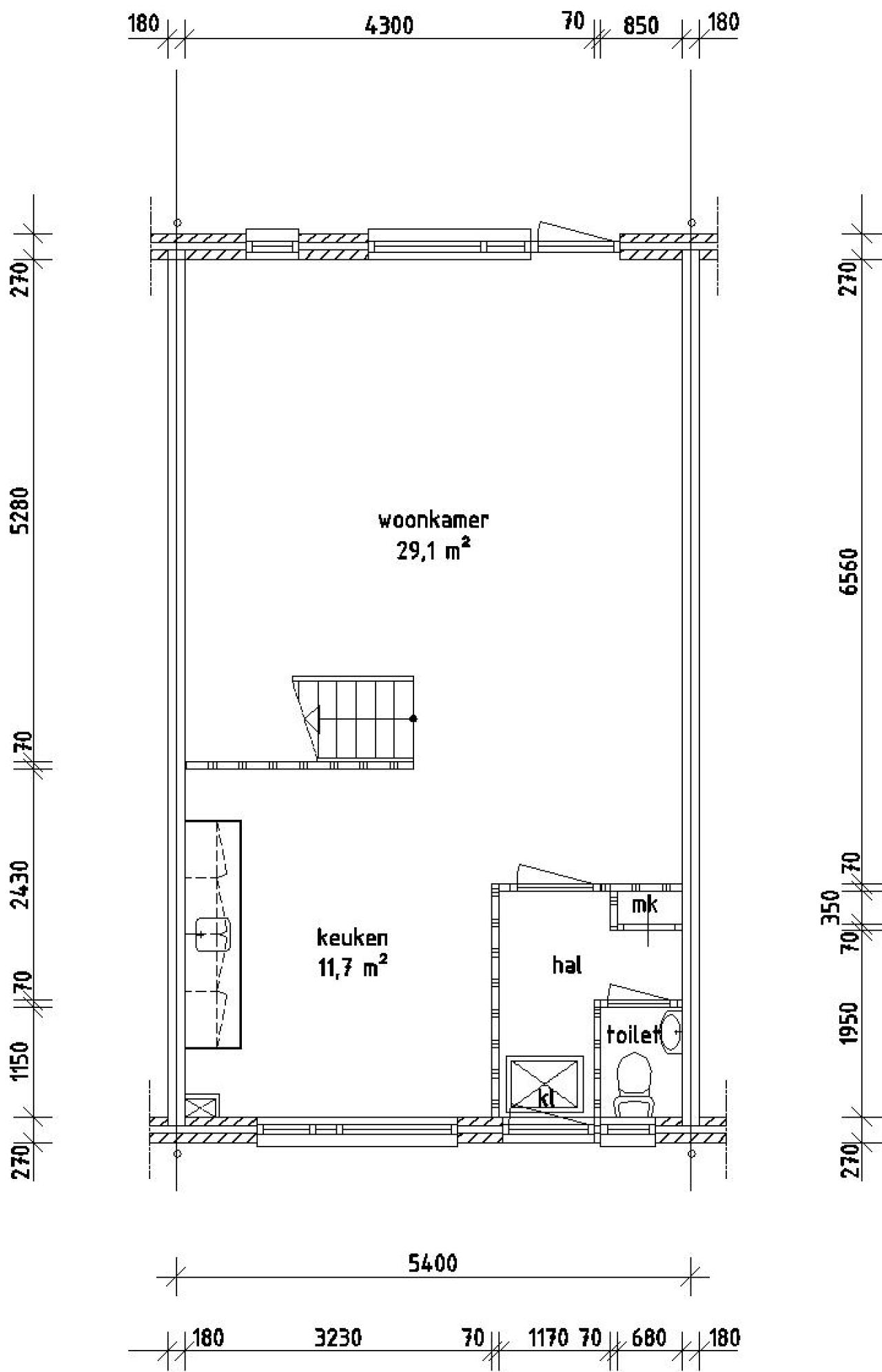
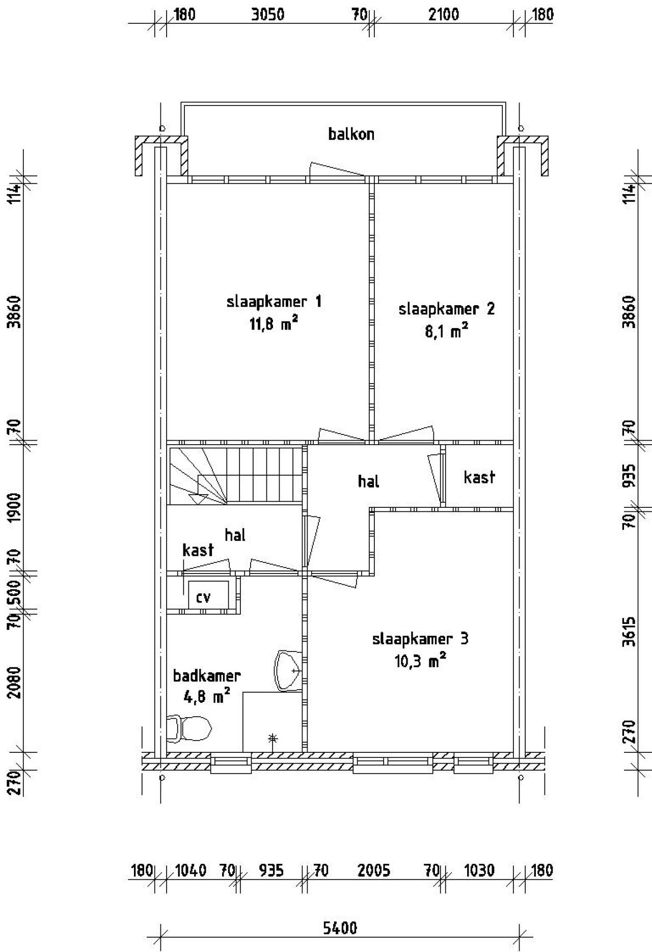
Area:
87 m2
Rooms:
4
Beds:
3
Waiting time:
(not set)
Date available:
Jul 28, 2025
Maximum income:
(not set)
Status:
Expired

Property description

Map