Rental property Koog aan de Zaan

Glazenmakersveld 65, Koog aan de Zaan

Quick summary

Location
Koog aan de Zaan
Rental price
€760.93
Property type
Appartement
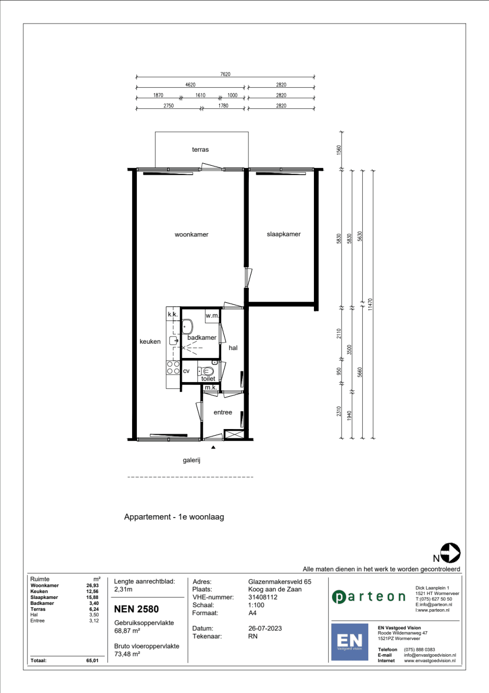
Area:
65 m2
Rooms:
2
Beds:
1
Waiting time:
(not set)
Date available:
Feb 18, 2026
Maximum income:
(not set)
Status:
Published
Respond

Property description

GalerijflatWoningCentraal gelegen in Koog aan de ZaanBouwjaar 1981Woning te bereiken via liftDeze woning wordt niet verhuurd aan een huishouden met kinderen.Vloertype BetonGelijkvloersOpen keukenElektrisch koken perilex aansluiting aanwezig maximaal 7200 wattAchtertuin op het westenExterne berging begane grondGratis parkeren voor de deurWasmachine aansluiting in de badkamerGehorigheid: leef geluidenHoud er rekening mee dat u zelf nog het één en ander moet doen om de woning naar uw smaak te maken. Denk hierbij aan het leggen van vloeren/ondervloeren (minimaal 10 decibel reducerend), afstomen van behang, schilderen/behangen van de muren, deuren, (raam)kozijnen en plafonds. Parteon levertde woning aan u op volgens de basisregels: Schoon, heel en veilig.Foto's ter indicatie: afwerking kan afwijkenKosten voor water zit in de servicekostenOmgevingSupermarkt op loop-fietsafstandOpenbaar vervoer op loop afstandNette bewoning gewenstLet op:woningkenmerken en plattegrond kunnen mogelijk iets afwijken van de werkelijkheid. Bijvoorbeeld omdat wij nog werkzaamheden moeten uitvoeren na de bezichtiging. De basis zoals het aantal kamers en het type woning staan vast.Aan deze advertentie kunt u geen rechten ontlenen.

Map