Rental property Koog aan de Zaan

Oosterveld 56, Koog aan de Zaan

Quick summary

Location
Koog aan de Zaan
Rental price
€994.26
Property type
Appartement
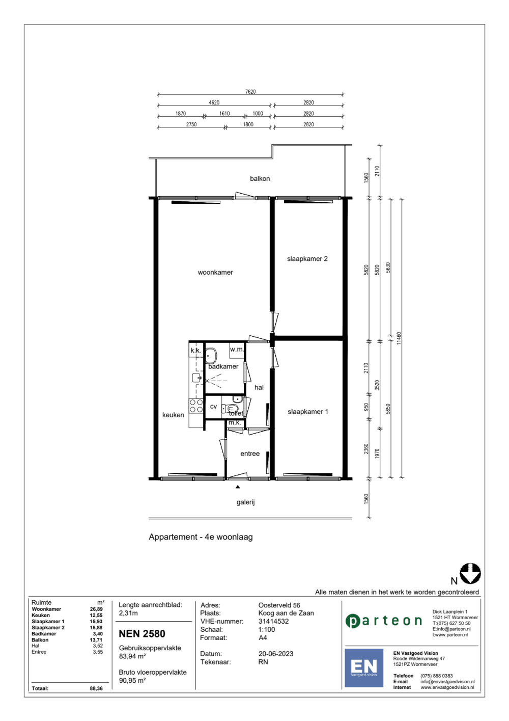
Area:
84 m2
Rooms:
3
Beds:
2
Waiting time:
(not set)
Date available:
Dec 29, 2025
Maximum income:
(not set)
Status:
Expired

Property description

Senioren appartement gelegen in de Wijk Westerkoog4e etagebereikbaar met liftopen galerijfietsenberging in de onderbouw van het complexentree, halvanuit de entree heeft u toegang tot de achter slaapkamervia de hal heeft u toegang tot de badkamer en toilet en keukenLichte woonkamer met grote ramen.Slaapkamer toegang vanuit de woonkamer.Vanuit de slaapkamer en woonkamer heeft u toegang tot het ruime balkon gelegen op het westen.Open keuken in het verlengde van de woonkamerElektrisch koken. perilex aansluiting max. 7200 watt.GelijkvloersOmgevingWoning gelegen aan de rondweg in Westerkoogrustig wijk met veel groenparkeren bij het complexWinkelcentrum is goed bereikbaar ongeveer 7 min. lopenNS-station op 7 min. loopafstand. Parkeren is openbaar bij het station.Extra informatieWoning wordt met voorrang toegewezen aan Zaanse doorstromermax. 2 pers.Deze woning wordt niet verhuurd aan huishoudens met kinderen.Seniorenwoningkandidaten met een GEB indicatie hebben voorrang.Rustige en nette bewoning gewenst.Houd er rekening mee dat u zelf nog het éen en ander moet doen om de woning naar uw smaak te maken. Denk hierbij aan het leggen van vloeren/ondervloeren (minimaal 10 decibel reducerend). afstomen van behang, schilderen/behangen van de muren, deuren, (raam)kozijnen en plafonds. Parteon levert de woning aan u op volgens de basisregels: Schoon, heel en veilig.Als u eerste kandidaat bent vragen wij u binnen 3 werkdagen gegevens in te leveren. Het is dan vereist om een kopie van het definitieve aanslagbiljet inkomstenbelasting of een inkomensverklaring (IBRI-formulier) van het voorgaande jaar in te leveren. Ook als u geen werk heeft moet u een inkomensverklaring inleveren. Deze kunt u aanvragen bij het belastingkantoor, via het gratis telefoonnummer (0800) 0543. Houdt u er rekening mee dat het 5 werkdagen duurt voordat u de verklaring heeft ontvangen. Wij adviseren u daarom deze alvast aan te vragen. U kunt dit formulier in het lopende jaar nog gebruiken voor eventuele volgende aanbieding(en).De huur in deze advertentie is onder voorbehoud. Een intakegesprek en een betaalbaarheidstoets kunnen deel uitmaken van de toewijzingsprocedure.Let op! Als er op uw inkomensverklaring staat VE dan kunnen wij deze niet accepteren.ZELFSTANDIG ONDERNEMERIndien u zelfstandig ondernemer bent dient u een recente definitieve aanslag of IBRI in te leveren. Het heeft geen zin om op een woning te reageren als u deze aanslag nog niet heeft.

Map