Rental property Kudelstaart

Galvanistraat 95, Kudelstaart

Quick summary

Location
Kudelstaart
Rental price
€719.47
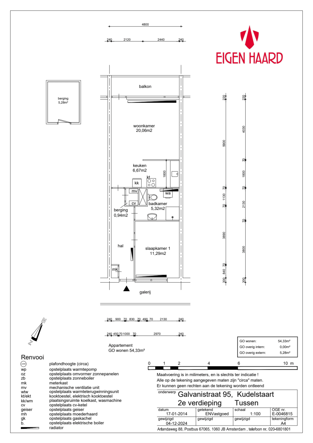
Property type
Appartement
Area:
43 m2
Rooms:
2
Beds:
1
Waiting time:
(not set)
Date available:
Jan 28, 2025
Maximum income:
€39.055.00
Status:
Expired

Property description

JongerenwoningRuim balkonMaximaal 2 personenNiet geschikt voor bewoning met kinderenWasmachine aansluiting in de badkamerLaminaatvloer kosteloos ter overname. Let op: Bij overname geldt er géén onderhoudsplicht voor Eigen Haard.Deze woning ligt in een gebied nabij Schiphol. Hierdoor kunt u (mogelijke) geluids- en milieuoverlast ervaren.JongerenwoningenVoor deze woning wordt een tijdelijk contract afgesloten, met een looptijd van maximaal 5 jaar.Bij deze jongerenwoning geldt dat er minimaal 1 en maximaal 2 personen mogen wonen. Huishoudens van 3 of meer personen kunnen hierdoor niet worden toegewezen. Daarnaast zijn huishoudens met kinderen in deze woning niet toegestaan. Een jongerencontract wordt slechts afgesloten tót de leeftijd van 28 jaar. Als men 28 wordt ná het reageren op de woning maar vóór het tekenen van de huurovereenkomst komt men niet in aanmerking.BuurtWelke voorzieningen zijn er in de buurt? Kijk bij het tabblad 'Buurt'om meer over de buurt te weten te komen.Let op:woningkenmerken, plattegrond en huurprijs zijn nog onder voorbehoud. Klik hier voor meer informatie:https://www.woningnetregioamsterdam.nl/Nieuws/Huurprijzen%20onder%20voorbehoud%20bij%20Eigen%20HaardTechnische staatWe leveren de woning volgens de Eigen Haard standaard op.  Voor meer informatie kijkt u op onze site:https://www.eigenhaard.nl/weten-en-regelen/sociale-huur/nieuwe-huurders/oplevering#F4BBB11819D44A4184749E7F8DD30BD7Houd er rekening mee dat u zelf ook nog het een en ander moet doen om de woning naar uw smaak te maken. Denk aan schilderen van de muren en plafonds, afstomen van behang en/ of het leggen van een vloer.Wilt u de woning huren?Voor meer informatie over welke documenten u nog meer moet inleveren op het moment dat u eerste kandidaat wordt voor de woning, kijkt u op onze website:https://www.eigenhaard.nl/weten-en-regelen/sociale-huur/nieuwe-huurders/acceptatie-en-toewijzing

Map